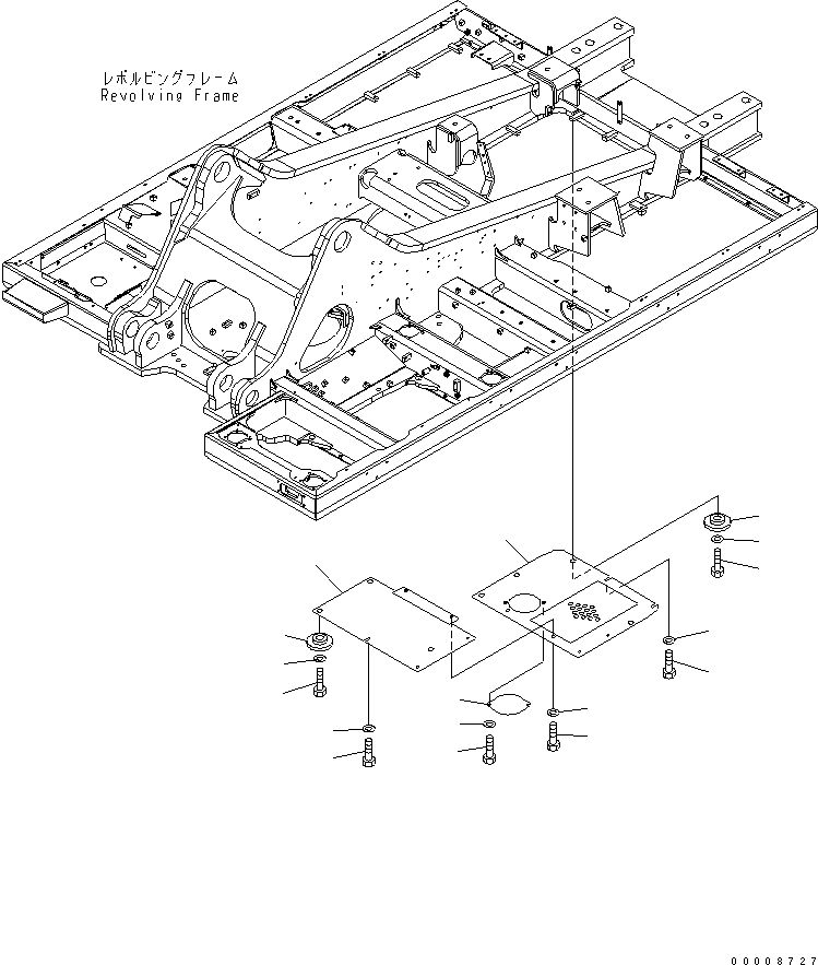
Запчасти Komatsu PC600-7-M1 НИЖН. КРЫШКА (УСИЛ.) (ОСНОВНАЯ РАМА) (ЦЕНТР.) ЧАСТИ КОРПУСА

Схема запчастей Komatsu PC600-7-M1 - НИЖН. КРЫШКА (УСИЛ.) (ОСНОВНАЯ РАМА) (ЦЕНТР.) ЧАСТИ КОРПУСА
1
2
3
4
5
6
7
8
9
10
11
12
13
14
15
16
17
FIT
1:1
100%

Артикул

Название

Примечание

Количество

1

21M-54-14712

COVER

2

21M-54-14721

COVER

3

207-54-51440

PLATE

4

01010-81230

BOLT

5

01643-31232

WASHER

6

01010-81230

BOLT

7

01643-31232

WASHER

8

208-54-57180

COLLAR

9

01010-81230

BOLT

10

175-54-34170

WASHER

11

01010-81230

BOLT

12

01643-31232

WASHER

13

01010-81230

BOLT

14

01643-31232

WASHER

15

208-54-57180

COLLAR

16

01010-81230

BOLT

17

01643-31232

WASHER

Выбрано товаров: 17