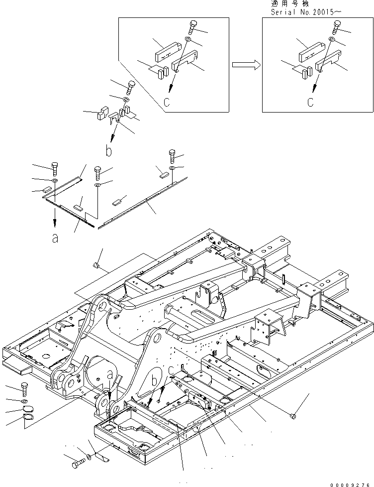
Запчасти Komatsu PC600-7-M1 ОСНОВНАЯ РАМА (ДЛЯ НИЖН. ДВОРНИКИ) ОСНОВНАЯ РАМА И ЕЕ ЧАСТИ

Схема запчастей Komatsu PC600-7-M1 - ОСНОВНАЯ РАМА (ДЛЯ НИЖН. ДВОРНИКИ) ОСНОВНАЯ РАМА И ЕЕ ЧАСТИ
1
2
3
4
5
6
7
8
9
10
11
11
12
12
13
13
14
14
15
15
16
17
18
19
20
21
21
22
23
24
25
26
27
28
29
30
31
32
33
34
35
36
FIT
1:1
100%

Артикул

Название

Примечание

Количество

1

21M-46-15712

FRAME

|1

21M-46-15711

FRAME

|1

21M-46-15710

FRAME

2

205-30-71181

COVER

3

205-30-71191

GASKET

4

01010-81230

BOLT

5

01643-31232

WASHER

6

21M-54-16931

COVER

|6

21M-54-16930

COVER

7

21M-54-16910

SHEET

8

21M-54-16920

SHEET

9

01010-81225

BOLT

10

01643-31232

WASHER

11

21M-54-16962

COVER

|11

21M-54-16961

COVER

12

21M-54-16941

SHEET

|12

21M-54-16940

SHEET

13

21M-54-16950

SHEET

14

01010-81225

BOLT

15

01643-31232

WASHER

16

21M-46-15610

SHEET

17

21M-46-15620

SHEET

18

21M-46-15640

SHEET

19

21M-46-15650

SHEET

|20

207-46-71530

COVER

20

COVER

21

20Y-46-42460

SHEET

22

01010-81020

BOLT

23

01643-31032

WASHER

|24

207-46-71540

COVER

24

COVER

25

20Y-46-42460

SHEET

26

01010-81035

BOLT

27

01643-31032

WASHER

28

21M-46-15631

COVER

29

20Y-46-42460

SHEET

30

01010-81035

BOLT

31

01643-31032

WASHER

32

21M-06-14310

COVER

33

01010-81225

BOLT

34

01643-31232

WASHER

35

07049-01215

PLUG

36

07049-01620

PLUG

Выбрано товаров: 43