Запчасти Komatsu PC600-7 ОХЛАЖД-Е (КРЕПЛЕНИЕ РАДИАТОРА И ЩИТКИ) СИСТЕМА ОХЛАЖДЕНИЯ

Схема запчастей Komatsu PC600-7 - ОХЛАЖД-Е (КРЕПЛЕНИЕ РАДИАТОРА И ЩИТКИ) СИСТЕМА ОХЛАЖДЕНИЯ
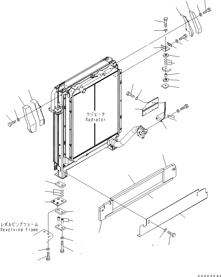
1
2
3
4
5
6
7
8
8
9
10
11
12
13
13
14
15
16
17
18
19
20
21
22
23
24
25
26
27
28
29
30
31
32
33
34
35
36
37
38
39
FIT
1:1
100%

Артикул

Название

Примечание

Количество

1

21M-03-11170

BRACKET

2

01010-81240

BOLT

3

01643-31232

WASHER

4

21M-03-15710

PLATE

5

01010-81640

BOLT

6

01643-31645

WASHER

7

21M-03-11180

BRACKET

8

207-03-51370

CUSHION

9

205-03-71330

COLLAR

10

07000-13022

O-RING

11

01010-81270

BOLT

12

01643-31232

WASHER

13

209-03-71531

CUSHION

14

21N-03-31630

PLATE

15

566-03-42270

SPACER

16

01011-81600

BOLT

17

01643-31645

WASHER

18

07000-13025

O-RING

19

21M-03-11160

BRACKET

20

21M-03-15231

COVER

20

21M-03-15230

COVER

21

21M-03-11520

SHEET

22

21M-03-11531

SHEET

22

21M-03-11530

SHEET

23

21M-03-15241

SHEET

23

21M-03-15240

SHEET

24

21M-03-15251

SHEET

24

21M-03-15250

SHEET

25

01010-81220

BOLT

26

01643-31232

WASHER

27

21M-03-18250

COVER

28

21M-03-18270

SEAL

29

01010-81230

BOLT

30

01643-31232

WASHER

31

21M-03-18260

COVER

32

21M-03-18280

SEAL

33

01010-81230

BOLT

34

01643-31232

WASHER

35

21M-01-15510

BRACKET

36

21M-01-15520

COVER

37

01010-80620

BOLT

38

01643-30623

WASHER

39

04434-51210

CLIP

Выбрано товаров: 43