Запчасти Komatsu PC600-7 ОСНОВН. КОНСТРУКЦИЯ (УПРАВЛ. НАВЕСН. ОБОРУД.) ( АКТУАТОР) КАБИНА ОПЕРАТОРА И СИСТЕМА УПРАВЛЕНИЯ

Схема запчастей Komatsu PC600-7 - ОСНОВН. КОНСТРУКЦИЯ (УПРАВЛ. НАВЕСН. ОБОРУД.) ( АКТУАТОР) КАБИНА ОПЕРАТОРА И СИСТЕМА УПРАВЛЕНИЯ
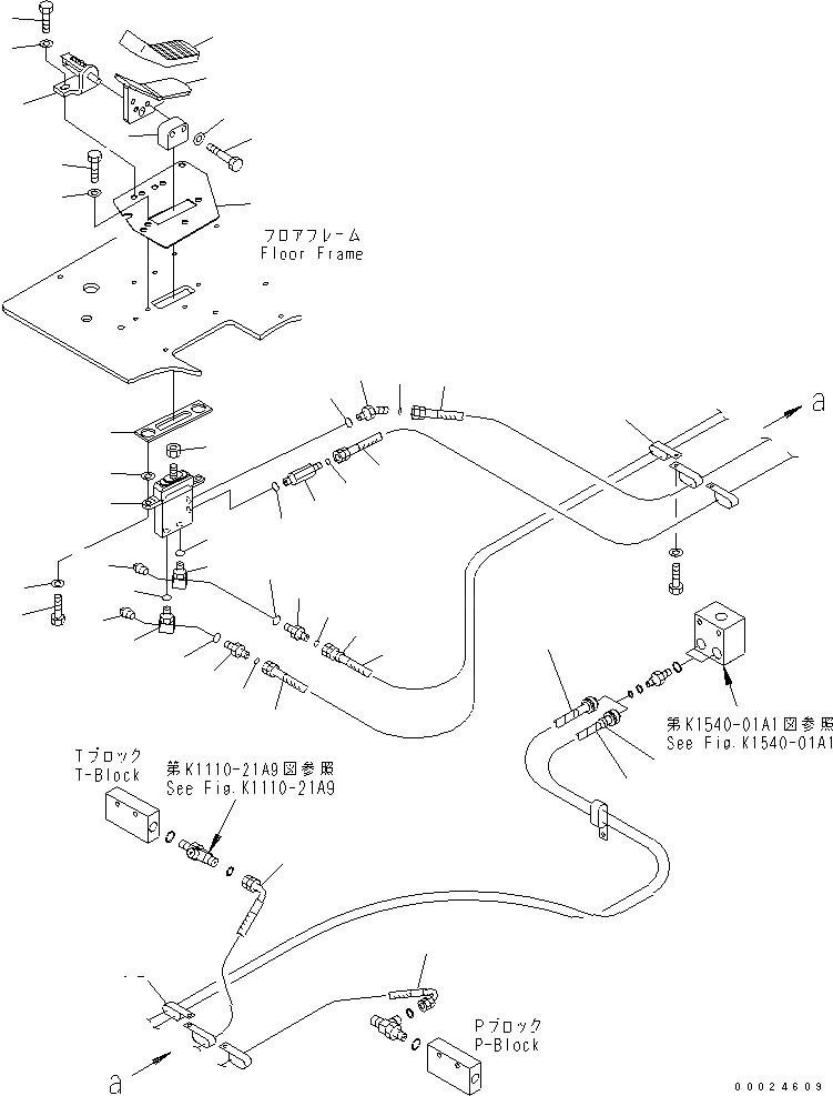
1
2
3
4
5
6
7
8
9
10
11
12
13
14
15
16
17
17
18
18
19
19
20
20
21
21
22
22
23
24
25
26
27
27
28
28
28
28
29
29
30
30
31
31
32
32
33
FIT
1:1
100%

Артикул

Название

Примечание

Количество

1

702-16-01230

PILOT VALVE

2

22U-54-25660

SEAL

3

22U-43-21470

SEAT

4

01010-81025

BOLT

5

01643-31032

WASHER

6

01643-31032

WASHER

7

20Y-62-25360

BRACKET

8

01010-D1025

BOLT

9

01643-71032

WASHER

10

20Y-43-31220

PEDAL

11

01010-D1045

BOLT

12

01643-71032

WASHER

13

22U-54-25541

PLATE

14

01010-81020

BOLT

15

01643-31032

WASHER

16

22U-54-25670

CAP

17

20Y-62-25610

ELBOW

18

07000-12011

O-RING

19

07042-30108

PLUG

20

11Y-62-12850

UNION

21

02896-11009

O-RING

22

07000-12011

O-RING

23

14S-62-21870

ELBOW

24

02896-11009

O-RING

25

209-64-17490

NIPPLE

26

02896-11009

O-RING

27

07000-12011

O-RING

28

21K-62-71840

HOSE, 2350MM

29

20Y-62-22810

BAND, YELLOW

30

02761-00309

HOSE

31

02761-00312

HOSE

32

04435-51510

CLIP

33

01583-51408

NUT

Выбрано товаров: 0