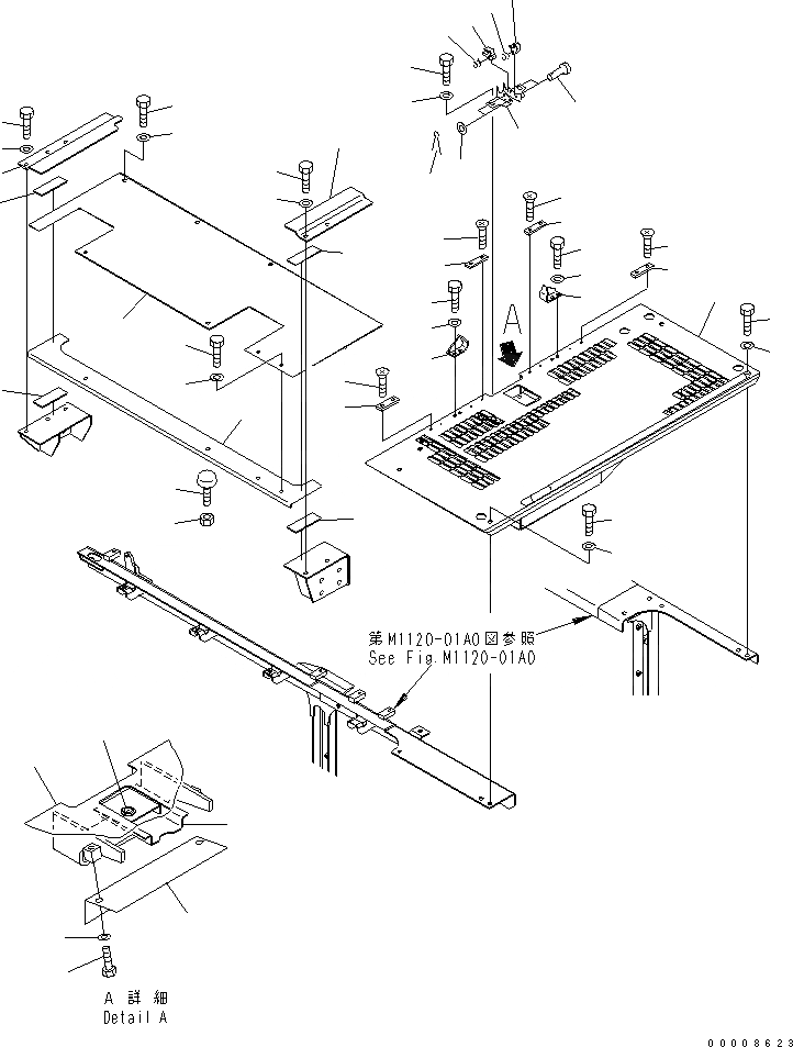
Запчасти Komatsu PC600-7 КРЫШКА(КАБИНА) ЧАСТИ КОРПУСА

Схема запчастей Komatsu PC600-7 - КРЫШКА(КАБИНА) ЧАСТИ КОРПУСА
1
1
1
1
2
3
4
5
6
7
8
9
10
11
12
13
13
14
15
16
16
17
17
18
19
20
21
22
22
22
22
23
24
24
24
24
24
25
25
25
25
25
26
27
28
29
29
30
31
32
33
34
35
FIT
1:1
100%

Артикул

Название

Примечание

Количество

1

205-54-68440

PLATE

2

207-54-61441

BRACKET

3

207-54-61450

BRACKET

4

154-54-22520

PIN

5

208-54-71920

BRACKET

6

208-54-71910

LEVER

7

207-54-72230

LEVER

8

20X-54-21460

SPRING

9

21K-54-26351

SPRING

10

04050-13020

PIN

11

01640-21123

WASHER

12

21M-54-11690

COVER

13

21M-54-14512

COVER

13

21M-54-14511

COVER

14

20Y-54-27531

LOCK

15

20Y-54-27540

LOCK ASS'Y

|$24

205-54-76280

ROTOR ASS'Y

16

01010-81025

BOLT

17

01643-31032

WASHER

18

01010-81030

BOLT

19

01643-31032

WASHER

20

01010-81230

BOLT

21

01643-31232

WASHER

22

01224-40616

SCREW

23

21M-54-14540

COVER

24

01010-81230

BOLT

25

01643-31232

WASHER

26

01010-81225

BOLT

27

01643-31232

WASHER

28

21M-54-11831

FRAME

29

21M-54-13360

SHEET

30

21M-54-14520

PLATE

31

21M-54-13360

SHEET

32

21M-54-14530

PLATE

33

21M-54-13360

SHEET

34

20Y-54-11611

STOPPER

35

01580-11008

NUT

Выбрано товаров: 37