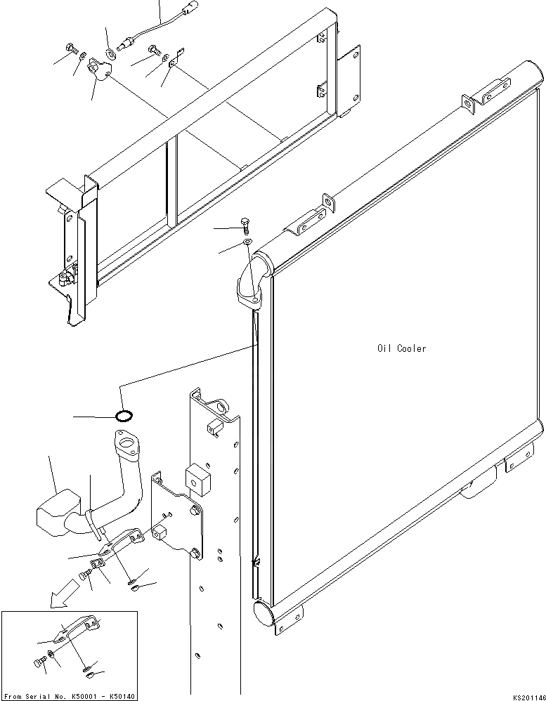
Запчасти Komatsu PC600-8 ОХЛАЖД-Е (ДАТЧИК И МАСЛООХЛАДИТЕЛЬ ТРУБКА) C СИСТЕМА ОХЛАЖДЕНИЯ

Схема запчастей Komatsu PC600-8 - ОХЛАЖД-Е (ДАТЧИК И МАСЛООХЛАДИТЕЛЬ ТРУБКА) C СИСТЕМА ОХЛАЖДЕНИЯ
8
9
2
6
4
5
1
4
5
3
10
7
14
11
12
13
16
15
11
12
13
16
15
FIT
1:1
100%

Артикул

Название

Примечание

Количество

1

21M-03-21611

BRACKET

2

7861-93-3510

SENSOR

3

08193-20010

CLIP

4

01010-81025

BOLT

5

01643-31032

WASHER

6

01643-31645

WASHER

7

21M-03-21481

TUBE

8

01010-81245

BOLT

9

01643-31232

WASHER

10

07000-13045

O-RING

11

21M-03-K1160

BRACKET

|11

21M-03-21490

BRACKET

12

01010-81025

BOLT

13

21M-03-K1170

PLATE

|13

01643-31032

WASHER

14

07283-34949

CLIP

15

01597-01009

NUT

16

01643-31032

WASHER

Выбрано товаров: 18