Качественные детали и логистика
Оригинальные и аналоговые запчасти с доставкой по России, Казахстану и Беларуси
©2022 PartSell ООО "Система" ИНН 2463123282 ОГРН 1212400004838
Центральный офис: г. Красноярск, Академика Киренского, д.87, пом.4
Телефон: 8 (800) 777-65-74 Email: zakaz@partsell.ru
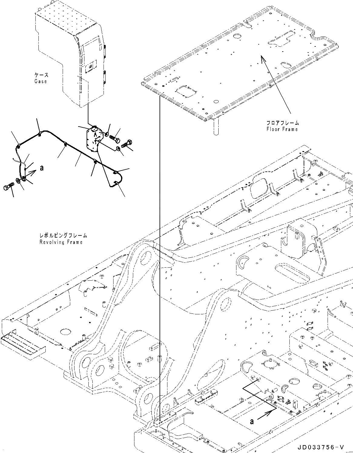
ОМЫВАТЕЛЬ СТЕКЛА, (№-)
№
Артикул
Название
Примечание
Количество
1
21T-06-11351
Tank Assembly
2
01010-80616
Bolt
3
209-72-12230
Washer
4
22U-06-11660
Hose
5
21T-38-12270
Clip
6
01010-81225
7
01643-31232
8
195-979-8590
Valve
9
195-979-8540
|$9
Выбрано товаров: 0