Запчасти Komatsu PC600-8R1 ОСНОВНАЯ РАМА ЗАЩИТА НИЖНЕЙ ЧАСТИ (№7-) ОСНОВНАЯ РАМА ЗАЩИТА НИЖНЕЙ ЧАСТИ

Схема запчастей Komatsu PC600-8R1 - ОСНОВНАЯ РАМА ЗАЩИТА НИЖНЕЙ ЧАСТИ (№7-) ОСНОВНАЯ РАМА ЗАЩИТА НИЖНЕЙ ЧАСТИ
1
2
3
4
5
6
7
8
8
7
6
5
4
7
4
6
5
8
FIT
1:1
100%

Артикул

Название

Примечание

Количество

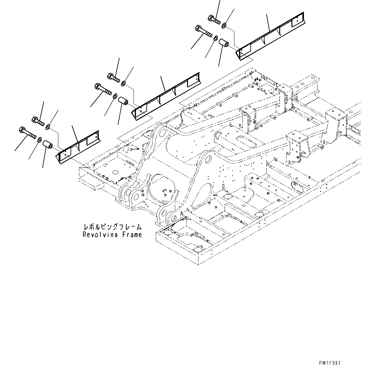
1

21M-46-15410

Deck Guard

2

21M-46-15420

Deck Guard

3

21M-46-15430

Deck Guard

4

205-03-71331

Collar

5

01010-81280

Bolt

6

01643-31232

Washer

7

01010-81235

Bolt

8

01643-31232

Washer

Выбрано товаров: 8