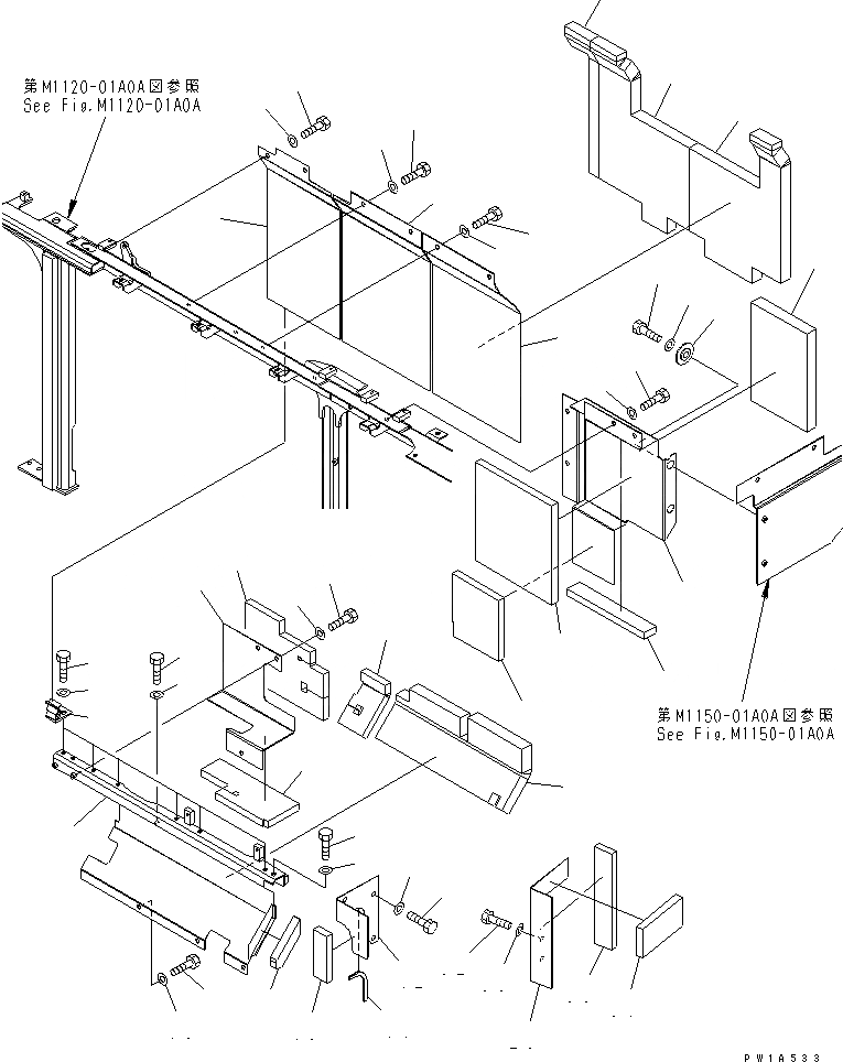
Запчасти Komatsu PC600LC-6A-KJ ПЕРЕГОРОДКА. (КАБИНА) (ОТСЕК ДВИГАТЕЛЯ ПЕРЕДН.)(№-) ЧАСТИ КОРПУСА

Схема запчастей Komatsu PC600LC-6A-KJ - ПЕРЕГОРОДКА. (КАБИНА) (ОТСЕК ДВИГАТЕЛЯ ПЕРЕДН.)(№-) ЧАСТИ КОРПУСА
1
2
3
4
5
6
7
8
9
10
11
12
13
14
15
16
17
17
18
18
19
20
21
22
23
24
25
26
27
28
29
30
31
32
33
34
35
36
37
38
39
39
40
40
41
42
43
44
45
46
FIT
1:1
100%

Артикул

Название

Примечание

Количество

1

21M-54-17541

COVER

2

21M-54-17641

SHEET

3

01010-81230

BOLT

4

01643-31232

WASHER

5

21M-54-17581

COVER

6

21M-54-17681

SHEET

7

21M-54-17890

SHEET

8

01010-81230

BOLT

9

01643-31232

WASHER

10

21M-54-17571

COVER

11

21M-54-17671

SHEET

12

21M-54-17970

SHEET

13

21M-54-17991

SHEET

14

20Y-54-12320

CATCH

15

01010-81230

BOLT

16

01643-31232

WASHER

17

01010-81230

BOLT

18

01643-31232

WASHER

19

01010-81225

BOLT

20

01643-31232

WASHER

21

21M-54-17551

COVER

22

21M-54-17651

SHEET

23

01010-81230

BOLT

24

01643-31232

WASHER

25

21M-54-17561

COVER

26

21M-54-17661

SHEET

27

01010-81230

BOLT

28

01643-31232

WASHER

29

21M-54-12711

COVER

30

21M-54-12771

SHEET

31

21M-54-12781

SHEET

32

01010-81230

BOLT

33

01643-31232

WASHER

34

21M-54-17531

COVER

35

21M-54-17630

SHEET

36

21M-54-17910

SHEET

37

21M-54-17920

SHEET

38

21M-54-17940

SHEET

39

01010-81230

BOLT

40

01643-31232

WASHER

41

203-54-62670

COLLAR

42

21M-54-11441

COVER

43

21M-54-12810

SHEET

44

21M-54-12820

SEAL

45

01010-81230

BOLT

46

01643-31232

WASHER

Выбрано товаров: 46