Запчасти Komatsu PC600LC-6A-KJ ТОПЛИВН. ЛИНИЯ (/)(№-) ТОПЛИВН. БАК. AND КОМПОНЕНТЫ

Схема запчастей Komatsu PC600LC-6A-KJ - ТОПЛИВН. ЛИНИЯ (/)(№-) ТОПЛИВН. БАК. AND КОМПОНЕНТЫ
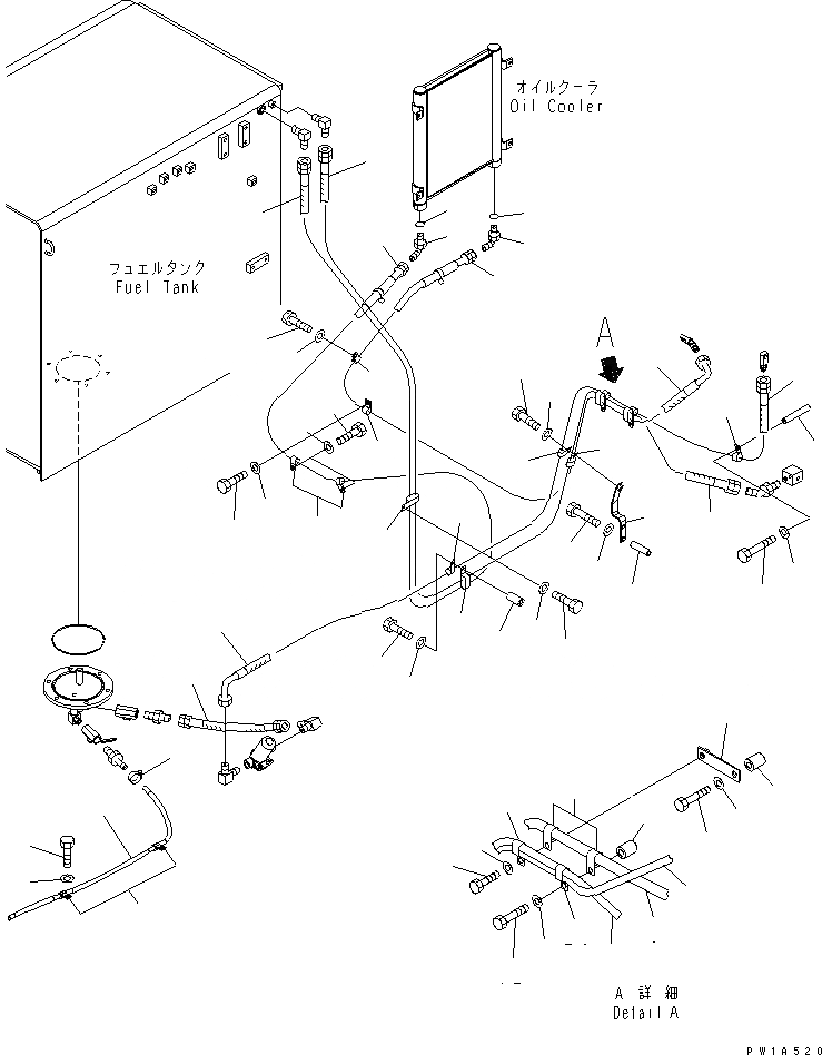
1
1
2
2
3
4
5
6
6
6
7
7
7
8
8
9
9
9
10
11
12
13
14
14
14
14
14
15
15
15
15
15
16
16
17
17
18
19
20
21
22
23
23
23
24
25
25
25
25
26
26
26
26
26
27
28
29
30
31
32
33
34
FIT
1:1
100%

Артикул

Название

Примечание

Количество

1

07235-10318

ELBOW

2

07002-12434

O-RING

3

07281-00167

CLAMP

4

07270-01295

TUBE

5

07102-20404

HOSE

6

07623-00426

HOSE

7

07185-00319

HOSE

8

07184-00319

HOSE

9

07184-00323

HOSE

10

01010-81280

BOLT

11

01643-31232

WASHER

12

01010-81260

BOLT

13

01643-31232

WASHER

14

01010-81225

BOLT

15

01643-31232

WASHER

16

01010-81220

BOLT

17

01643-31232

WASHER

18

01011-81040

BOLT

19

01643-31032

WASHER

20

206-62-41670

COLLAR

21

142-03-11160

SPACER

22

6151-51-5490

SPACER

23

04434-52112

CLIP

24

04434-52110

CLIP

25

04434-51512

CLIP

26

04435-51512

CLIP

27

20Y-04-21151

BRACKET

28

22S-62-26210

SPACER

29

01011-81210

BOLT

30

01643-31232

WASHER

31

20Y-06-21240

PLATE

32

142-03-11160

SPACER

33

01010-81260

BOLT

34

01643-31232

WASHER

Выбрано товаров: 34