Запчасти Komatsu PC600LC-6A ОСНОВН. ЛИНИЯ PPC(№-) ГИДРАВЛИКА

Схема запчастей Komatsu PC600LC-6A - ОСНОВН. ЛИНИЯ PPC(№-) ГИДРАВЛИКА
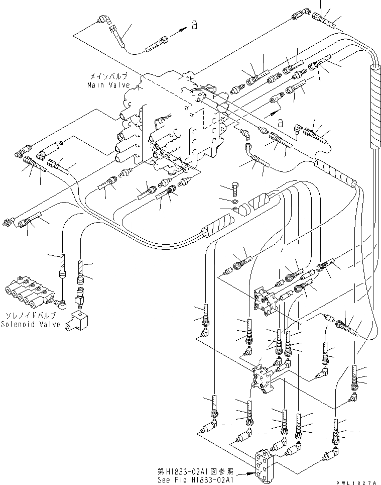
1
1
2
2
3
3
4
4
4
4
4
4
5
5
6
6
7
7
8
8
8
8
8
8
9
9
9
9
10
10
10
10
10
10
11
11
12
12
12
12
13
13
13
13
13
13
13
13
14
14
14
14
15
15
16
16
16
16
17
17
18
18
18
18
19
19
19
19
20
20
20
20
20
20
21
21
22
22
22
22
23
24
25
26
FIT
1:1
100%

Артикул

Название

Примечание

Количество

1

20Y-62-22790

BAND, RED

2

20Y-62-22810

BAND, YELLOW

3

20Y-62-22820

BAND, BLUE

4

20Y-62-22840

BAND, BLACK

5

21M-62-15560

HOSE, 600MM

6

21M-62-15570

HOSE, 800MM

7

21M-62-15580

HOSE, 600MM

8

21M-62-15610

HOSE, 1100MM

9

21M-62-15620

HOSE, 1200MM

10

21M-62-15590

HOSE, 900MM

11

20Y-62-22790

BAND, RED

12

20Y-62-22810

BAND, YELLOW

13

20Y-62-22830

BAND, WHITE

14

20Y-62-22840

BAND, BLACK

15

20Y-62-22850

BAND, GREEN

16

21M-62-15650

HOSE, 850MM

17

21M-62-15630

HOSE, 700MM

18

21M-62-15640

HOSE, 1000MM

19

20Y-62-22820

BAND, BLUE

20

20Y-62-22830

BAND, WHITE

21

20Y-62-22850

BAND, GREEN

22

20Y-62-22860

BAND, BROWN

23

21M-62-16930

HOSE, 250MM

24

21M-62-15520

CLIP

25

01010-81230

BOLT

26

01643-31232

WASHER

Выбрано товаров: 26