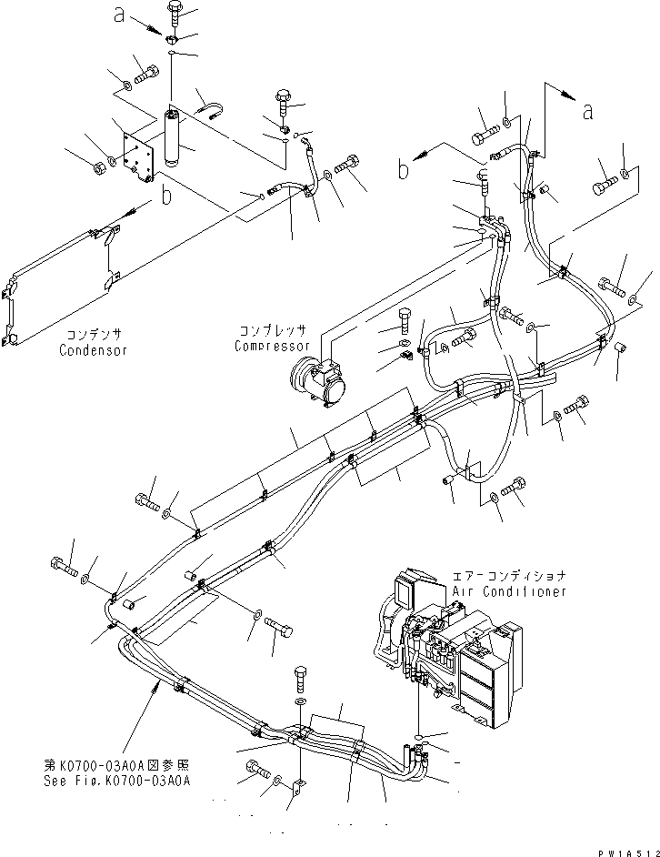
Запчасти Komatsu PC600LC-6A КОНДИЦ. ВОЗДУХА (СОЕД. ШЛАНГОВ)(№-) КАБИНА ОПЕРАТОРА И СИСТЕМА УПРАВЛЕНИЯ

Схема запчастей Komatsu PC600LC-6A - КОНДИЦ. ВОЗДУХА (СОЕД. ШЛАНГОВ)(№-) КАБИНА ОПЕРАТОРА И СИСТЕМА УПРАВЛЕНИЯ
1
1
2
3
3
4
4
5
5
6
7
7
8
9
9
10
10
11
12
13
13
14
15
16
16
17
18
19
20
20
20
20
21
22
23
24
25
25
26
27
28
29
30
31
32
33
34
34
35
36
37
38
39
40
41
42
43
44
45
45
45
46
47
48
49
49
49
49
49
50
50
50
51
51
51
52
52
52
53
54
55
FIT
1:1
100%

Артикул

Название

Примечание

Количество

1

21M-979-1591

HOSE, 6500MM

2

20Y-979-3150

O-RING

3

21M-979-1520

HOSE, 5600MM

4

20Y-979-3140

O-RING

5

21M-979-1581

HOSE, 3500MM

6

20Y-979-3140

O-RING

7

04434-51912

CLIP

8

21T-38-71260

BRACKET

9

01010-81230

BOLT

10

01643-31232

WASHER

11

01010-81225

BOLT

12

01643-31232

WASHER

13

141-06-11220

CLIP

14

01010-81230

BOLT

15

01643-31232

WASHER

16

141-06-11220

CLIP

17

20Y-03-11220

COLLAR

18

01010-81260

BOLT

19

01643-31232

WASHER

20

04434-51612

CLIP

21

01010-81230

BOLT

22

01643-31232

WASHER

23

20Y-979-3120

TANK

24

21M-979-1220

HOSE, 560MM

25

20Y-979-3150

O-RING

26

209-979-7460

JOINT

27

20Y-979-3150

O-RING

28

17A-911-1671

JOINT

29

20Y-979-3150

O-RING

30

21M-979-1571

BRACKET

31

07283-36155

CLIP

32

01597-01009

NUT

33

01643-31032

WASHER

34

01435-00625

BOLT

35

01010-81025

BOLT

36

01643-31032

WASHER

37

04434-51912

CLIP

38

04434-51612

CLIP

39

11T-27-11180

SPACER

40

01010-81255

BOLT

41

01643-31232

WASHER

42

04434-51612

CLIP

43

01010-81230

BOLT

44

01643-31232

WASHER

45

141-06-11220

CLIP

46

207-979-6180

BRACKET

47

01010-81230

BOLT

48

01643-31232

WASHER

49

04434-52112

CLIP

50

20Y-03-11220

COLLAR

51

01010-81260

BOLT

52

01643-31232

WASHER

53

01010-81230

BOLT

54

01643-31232

WASHER

55

01435-00630

BOLT

Выбрано товаров: 55