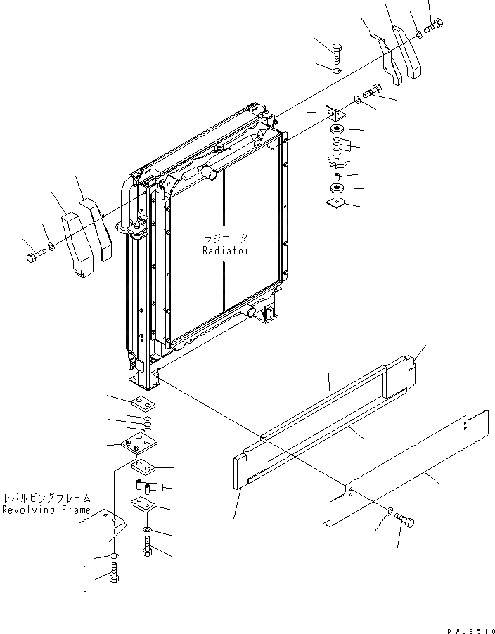
Запчасти Komatsu PC600LC-6KJ ОХЛАЖД-Е (КРЕПЛЕНИЕ РАДИАТОРА И ЩИТКИ) (ДЛЯ ЕС)(№-999) СИСТЕМА ОХЛАЖДЕНИЯ

Схема запчастей Komatsu PC600LC-6KJ - ОХЛАЖД-Е (КРЕПЛЕНИЕ РАДИАТОРА И ЩИТКИ) (ДЛЯ ЕС)(№-999) СИСТЕМА ОХЛАЖДЕНИЯ
1
2
3
4
5
5
6
7
8
9
10
10
11
12
13
14
15
16
17
18
19
20
21
22
23
24
25
26
27
28
29
30
31
32
33
FIT
1:1
100%

Артикул

Название

Примечание

Количество

1

21M-03-11170

BRACKET

2

01010-81230

BOLT

3

01643-31232

WASHER

4

21M-03-11180

BRACKET

5

207-03-51370

CUSHION

6

205-03-71330

COLLAR

7

07000-13022

O-RING

8

01010-81270

BOLT

9

01643-31232

WASHER

10

209-03-71531

CUSHION

11

21N-03-31630

PLATE

12

566-03-42270

SPACER

13

01011-81600

BOLT

14

01643-31645

WASHER

15

07000-13025

O-RING

16

01010-81640

BOLT

17

01643-31645

WASHER

18

21M-03-11160

BRACKET

19

21M-03-11510

COVER

20

21M-03-11520

SHEET

21

21M-03-11530

SHEET

22

21M-03-11540

SHEET

23

21M-03-11550

SHEET

24

01010-81220

BOLT

25

01643-31232

WASHER

26

21M-03-18250

COVER

27

21M-03-18270

SEAL

28

01010-81230

BOLT

29

01643-31232

WASHER

30

21M-03-18260

COVER

31

21M-03-18280

SEAL

32

01010-81230

BOLT

33

01643-31232

WASHER

Выбрано товаров: 33