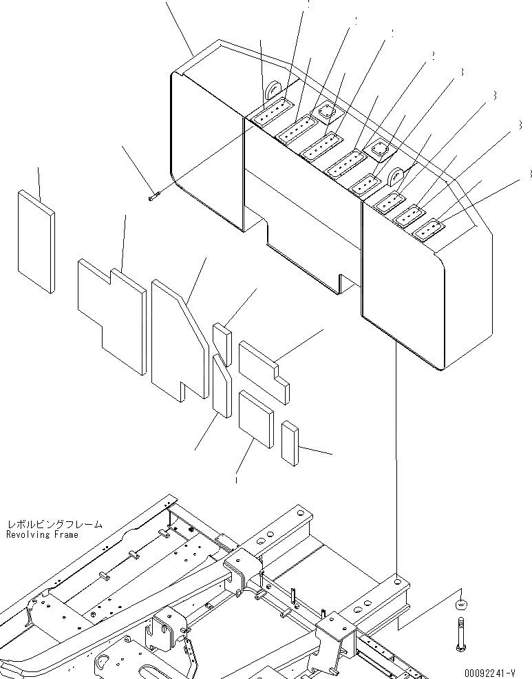
Запчасти Komatsu PC600LC-8 ПРОТИВОВЕС (7KG)(ЕС REG ARRANGE)(№-) ЧАСТИ КОРПУСА

Схема запчастей Komatsu PC600LC-8 - ПРОТИВОВЕС (7KG)(ЕС REG ARRANGE)(№-) ЧАСТИ КОРПУСА
1
2
2
2
2
3
3
3
3
4
5
6
7
8
9
10
11
12
12
12
12
13
13
13
13
14
FIT
1:1
100%

Артикул

Название

Примечание

Количество

|$1

21M-46-24610

WEIGHT

1

WEIGHT

2

21M-54-22330

PLATE (WELDED)

3

20Y-04-48190

PLATE (WELDED)

4

21M-54-22810

SHEET

5

21M-54-22821

SHEET

6

21M-54-22830

SHEET

7

21M-54-22840

SHEET

8

21M-54-22850

SHEET

9

21M-54-22860

SHEET

10

21M-54-23920

SHEET

11

21M-54-23930

SHEET

12

20Y-00-42110

PLATE

13

22U-00-28110

PLATE

14

01370-00508

SCREW

Выбрано товаров: 15