Запчасти Komatsu PC600LC-8E0 ЗАДН. КРЫШКА (№-) ЗАДН. КРЫШКА, ДЛЯ ПРЯМАЯ ЛОПАТА CONFIGURATION

Схема запчастей Komatsu PC600LC-8E0 - ЗАДН. КРЫШКА (№-) ЗАДН. КРЫШКА, ДЛЯ ПРЯМАЯ ЛОПАТА CONFIGURATION
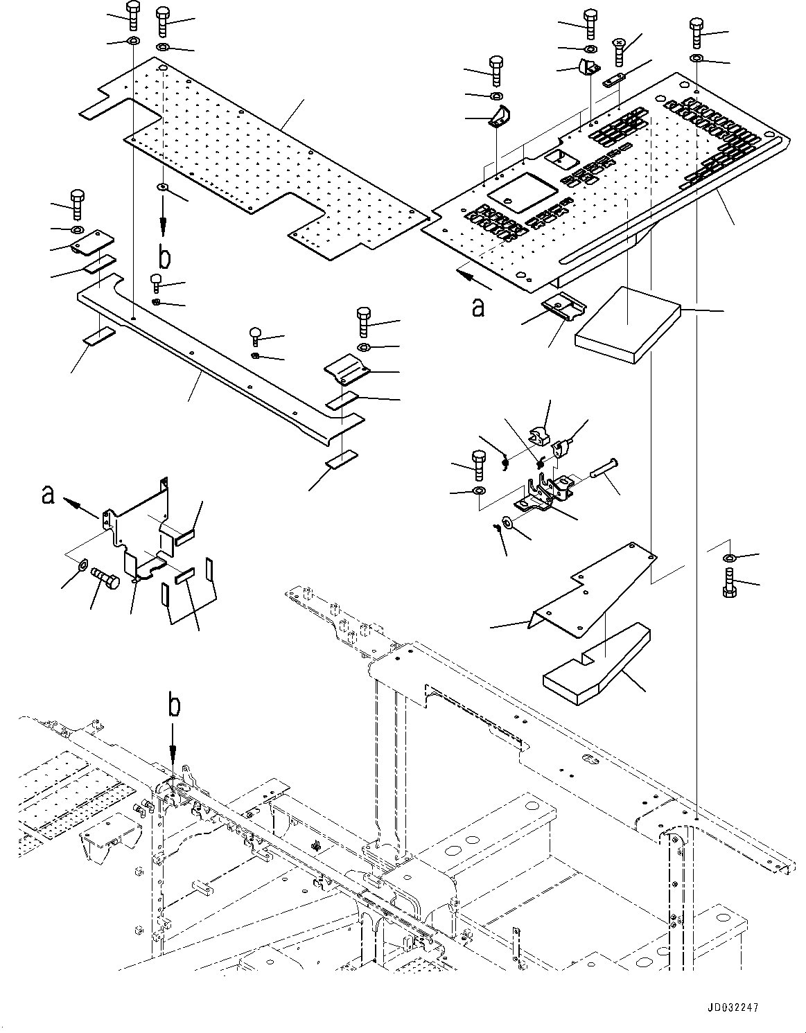
16
2
19
18
29
18
19
24
1
3
17
28
15
25
26
27
14
29
28
30
8
9
6
7
20
21
5
4
11
10
45
46
44
44
43
38
39
37
40
13
12
23
22
32
34
32
31
41
42
42
41
35
33
36
FIT
1:1
100%

Артикул

Название

Примечание

Количество

1

205-54-68440

Plate

2

207-54-61441

Bracket

3

207-54-61450

Bracket

4

154-54-22520

Pin

5

208-54-71920

Bracket

6

208-54-71910

Lever

7

207-54-72230

Lever

8

20X-54-21460

Spring

9

21K-54-26351

Spring

10

04050-13020

Pin, Cotter

11

01640-21123

Washer, Flat

12

21M-54-21991

Cover

13

21M-54-22961

Sheet

14

21M-54-21712

Cover

15

20Y-54-27531

Lock,Welded

16

20Y-54-27540

Lock Assembly

17

21M-54-17320

Sheet

18

01010-81025

Bolt

19

01643-31032

Washer

20

01010-81030

Bolt

21

01643-31032

Washer

22

01010-81220

Bolt

23

01643-31232

Washer

24

01224-40616

Screw

25

01010-81235

Bolt

26

01643-31232

Washer

27

21M-54-34110

Cover

28

01010-81230

Bolt

29

01643-31232

Washer

30

208-54-57181

Collar

31

21M-54-34120

Frame

32

21M-54-13360

Sheet

33

21M-54-23450

Plate

34

21M-54-13360

Sheet

35

01010-81230

Bolt

36

01643-31232

Washer

37

21M-54-34130

Plate

38

21M-54-13360

Sheet

39

01010-81250

Bolt

40

01643-31232

Washer

41

20Y-54-11611

Stopper

42

01580-11008

Nut

43

21M-54-22121

Bracket

44

205-03-71440

Sheet

45

01010-81225

Bolt

46

01643-31232

Washer

Выбрано товаров: 0