Запчасти Komatsu PC600LC-8E0 ПРОТИВОВЕС (№-) ПРОТИВОВЕС, ДОПОЛН. ПРОТИВОВЕС

Схема запчастей Komatsu PC600LC-8E0 - ПРОТИВОВЕС (№-) ПРОТИВОВЕС, ДОПОЛН. ПРОТИВОВЕС
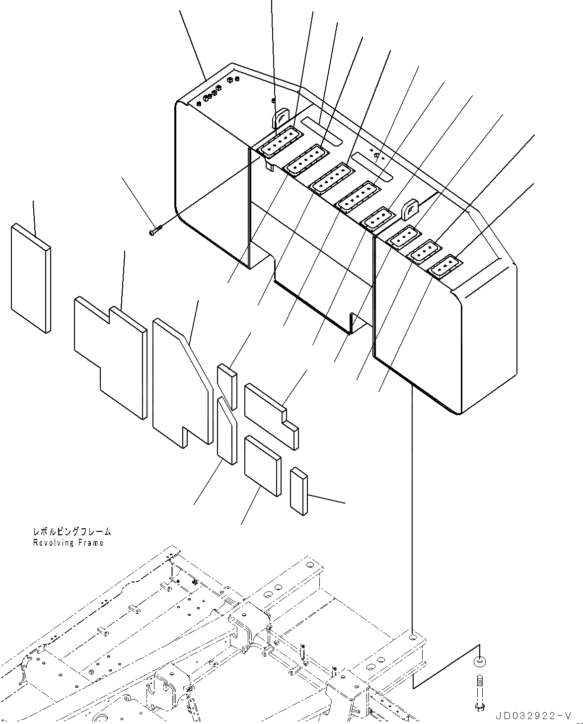
15
4
5
6
7
8
9
11
10
14
14
14
14
12
12
12
12
13
13
2
2
2
2
3
3
3
3
1
FIT
1:1
100%

Артикул

Название

Примечание

Количество

|$0

21M-46-34331

Weight, 13500Kg

1

Weight

2

20Y-04-48190

Plate,Welded

3

21M-54-22330

Plate,Welded

4

21M-54-32110

Sheet

5

21M-54-22821

Sheet

6

21M-54-22830

Sheet

7

21M-54-22840

Sheet

8

21M-54-22850

Sheet

9

21M-54-22860

Sheet

10

21M-54-23920

Sheet

11

21M-54-23930

Sheet

12

20Y-00-42110

Plate

13

20Y-00-42170

Plate

14

22U-00-28110

Plate

15

01370-00508

Screw

Выбрано товаров: 16