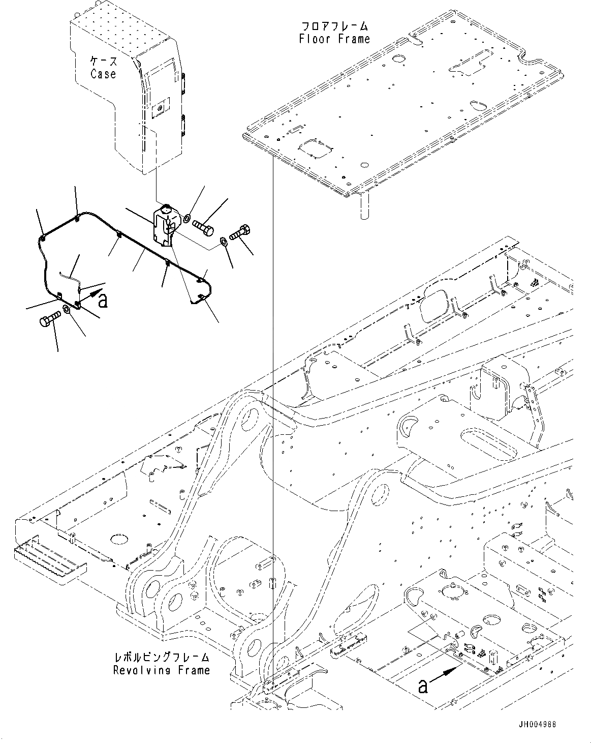
Запчасти Komatsu PC600LC-8E0 ОМЫВАТЕЛЬ СТЕКЛА, (№-) ОМЫВАТЕЛЬ СТЕКЛА

Схема запчастей Komatsu PC600LC-8E0 - ОМЫВАТЕЛЬ СТЕКЛА, (№-) ОМЫВАТЕЛЬ СТЕКЛА
1
2
3
5
5
6
7
8
9
2
3
5
5
5
4
5
5
5
FIT
1:1
100%

Артикул

Название

Примечание

Количество

1

21T-06-11351

Tank Assembly

2

01010-80616

Bolt

3

209-72-12230

Washer

4

22U-06-11660

Hose

5

21T-38-12270

Clip

6

01010-81225

Bolt

7

01643-31232

Washer

8

195-979-8590

Valve

9

195-979-8540

Hose

|$9

195-979-8540

Hose

|$10

195-979-8540

Hose

|$11

195-979-8540

Hose

|$12

195-979-8540

Hose

|$13

195-979-8540

Hose

|$14

195-979-8540

Hose

|$15

195-979-8540

Hose

Выбрано товаров: 16