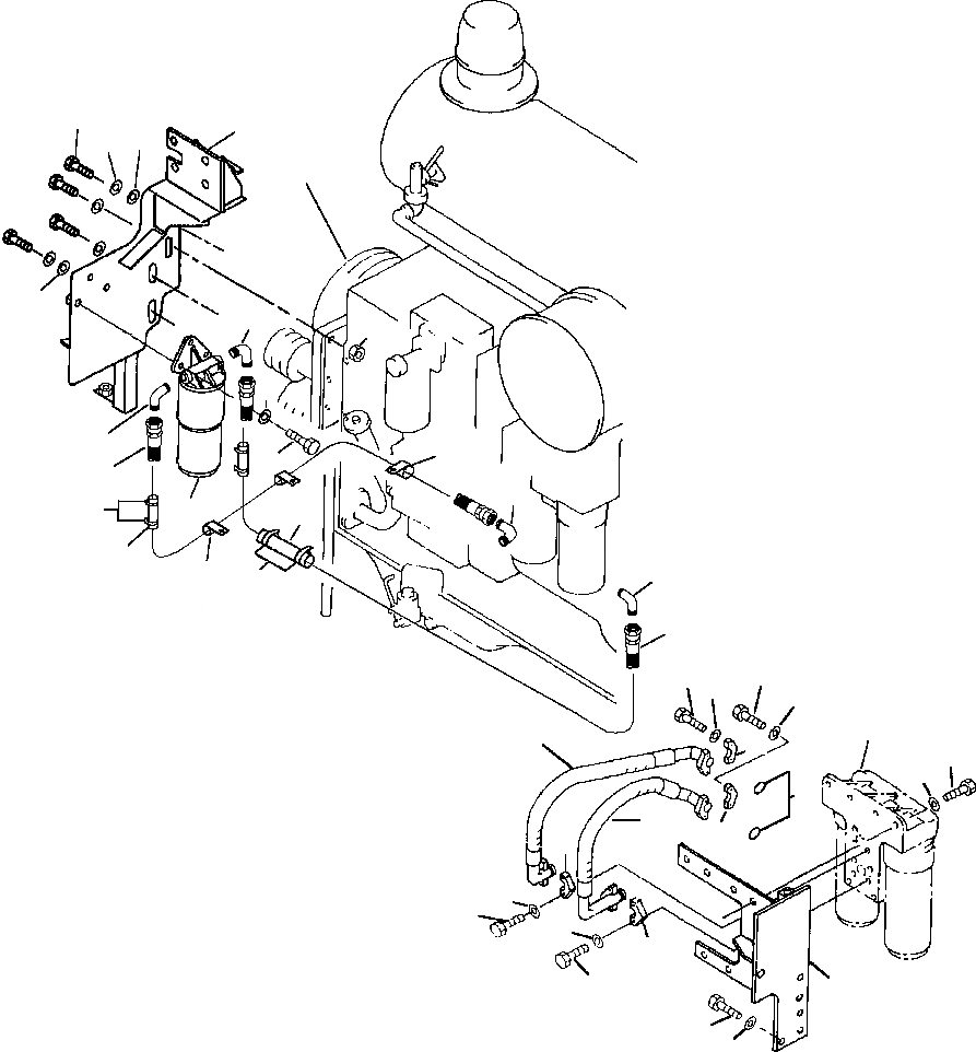
Запчасти Komatsu PC650-5 & PC650LC-5 LUBE МАСЛ. ФИЛЬТР ТРУБЫ КОМПОНЕНТЫ ДВИГАТЕЛЯ

Схема запчастей Komatsu PC650-5 & PC650LC-5 - LUBE МАСЛ. ФИЛЬТР ТРУБЫ КОМПОНЕНТЫ ДВИГАТЕЛЯ
25
1
2
5
3
28
5
19
4
7
19
23
6
21
22
26
24
24
23
22
25
20
11
11
12
12
27
9
10
17
18
13
8
10
10
13
11
12
10
11
14
15
16
FIT
1:1
100%

Артикул

Название

Примечание

Количество

1

209-979-5514

BRACKET

2

01011-51010

BOLT

3

01643-31032

WASHER

4

01580-11008

NUT

5

175-15-45660

WASHER

6

01010-51035

BOLT

7

01643-31032

WASHER

8

209-01-51710

HOSE

9

209-01-51690

HOSE

10

07371-31255

FLANGE, SPLIT

11

02010-70638

BOLT

12

01643-51032

WASHER

13

07000-03038

O-RING

14

209-01-51681

BRACKET

15

01010-51230

BOLT

16

01643-31232

WASHER

17

01010-51040

BOLT

18

01643-31032

WASHER

19

6127-51-5930

ELBOW

20

07102-20417

HOSE

21

07102-20422

HOSE

22

6691-51-9942

ELBOW

23

6600-01-5950

CLIP

24

205-62-53780

COVER

25

08034-00536

BAND

Выбрано товаров: 25