Запчасти Komatsu PC650LC-8E0 НИЖН. КРЫШКА, ОСНОВНАЯ РАМА, RHS (№-) НИЖН. КРЫШКА

Схема запчастей Komatsu PC650LC-8E0 - НИЖН. КРЫШКА, ОСНОВНАЯ РАМА, RHS (№-) НИЖН. КРЫШКА
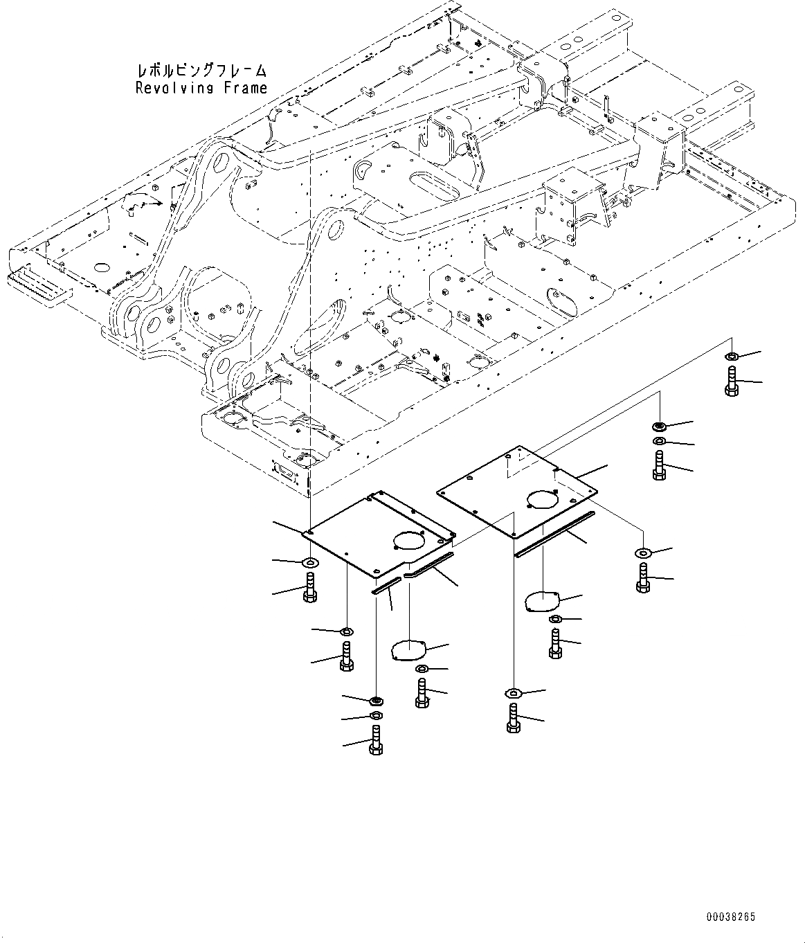
1
3
2
5
4
6
7
9
8
10
14
11
13
12
24
23
25
15
17
18
16
19
20
22
21
21
22
FIT
1:1
100%

Артикул

Название

Примечание

Количество

1

21M-54-32540

Cover

2

21M-54-23380

Seal

3

21M-54-23391

Seal

4

01010-81235

Bolt

5

01643-31232

Washer

6

01010-81235

Bolt

7

175-54-34170

Washer

8

208-54-57180

Collar

9

01010-81235

Bolt

10

01643-31232

Washer

11

207-54-51440

Plate

12

01010-81230

Bolt

13

01643-31232

Washer

14

21M-54-32530

Cover

15

21M-54-23370

Seal

16

01010-81235

Bolt

17

01643-31232

Washer

18

208-54-57180

Collar

19

01010-81235

Bolt

20

01643-31232

Washer

21

01010-81235

Bolt

22

175-54-34170

Washer

23

207-54-51440

Plate

24

01010-81230

Bolt

25

01643-31232

Washer

Выбрано товаров: 0