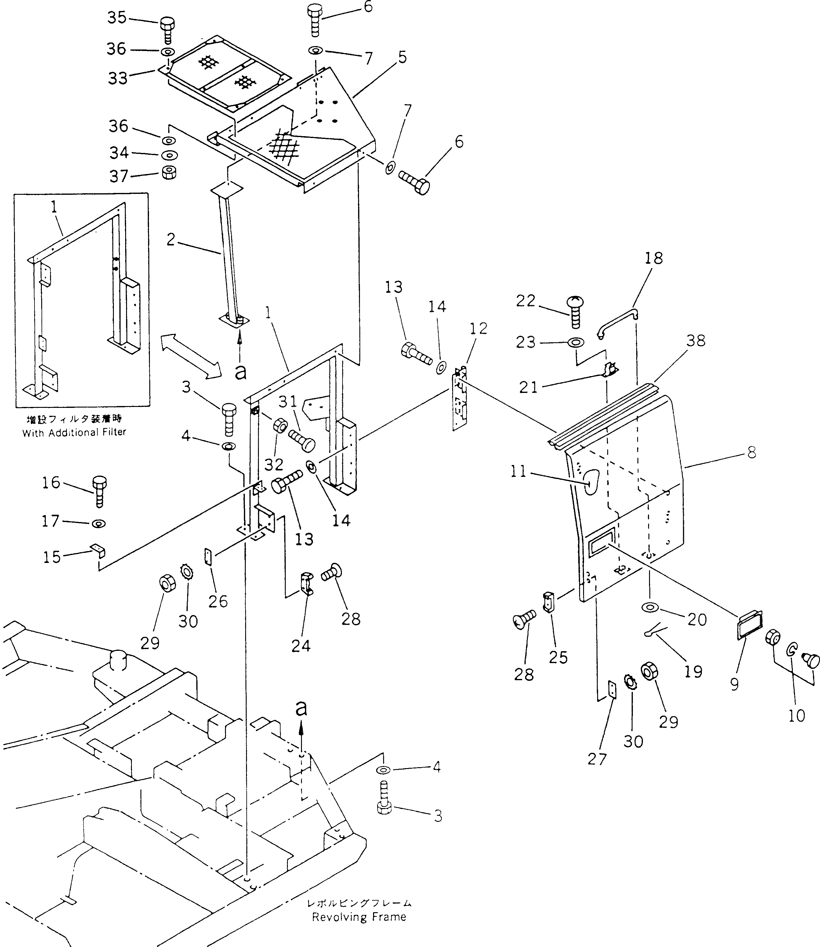
Запчасти Komatsu PC70-6S ЛЕВ. COVER ЧАСТИ КОРПУСА

Схема запчастей Komatsu PC70-6S - ЛЕВ. COVER ЧАСТИ КОРПУСА
FIT
1:1
100%

Артикул

Название

Примечание

Количество

1

201-54-61492

BRACKET

2

201-54-63440

BRACKET

3

01010-51025

BOLT

4

01643-31032

WASHER

5

201-54-61442

COVER

6

201-54-64350

SEAL

7

201-54-64360

SEAL

8

201-54-64390

SEAL

9

01010-51025

BOLT

10

01643-31032

WASHER

11

201-54-63750

COVER ASS'Y

12

421-54-11372

LOCK ASS'Y (WELDED)

13

421-54-11381

LOCK

14

201-54-63720

SHEET

15

201-54-63730

SHEET

16

201-54-63740

SHEET

17

203-54-52412

HINGE

18

01010-51225

BOLT

19

01643-31232

WASHER

20

203-54-52620

PLATE

21

01010-51025

BOLT

22

01643-31032

WASHER

23

201-54-61220

BAR

24

04050-13018

PIN,COTTER

25

01641-21016

WASHER

26

20B-54-12210

SPRING

27

01220-40406

SCREW

28

01641-20405

WASHER

29

566-54-13410

STRIKER

30

566-54-14420

STOPPER

31

203-54-56790

PLATE

32

203-54-52610

PLATE

33

01225-40820

SCREW

34

01580-10806

NUT

25

566-54-13570

WASHER

26

20Y-54-11611

STOPPER

37

01580-11008

NUT

38

201-54-63780

COVER ASS'Y

39

201-54-63760

SHEET

40

01010-51025

BOLT

41

01643-31032

WASHER

42

201-54-64211

NET,(FOR DIRT PROTECTION)

43

01010-50825

BOLT,(FOR DIRT PROTECTION)

44

01643-30823

WASHER,(FOR DIRT PROTECTION)

45

01580-10806

NUT,(FOR DIRT PROTECTION)

46

203-54-56970

WASHER,(FOR DIRT PROTECTION)

47

09412-10006

SEAL,(FOR DIRT PROTECTION)

Выбрано товаров: 47