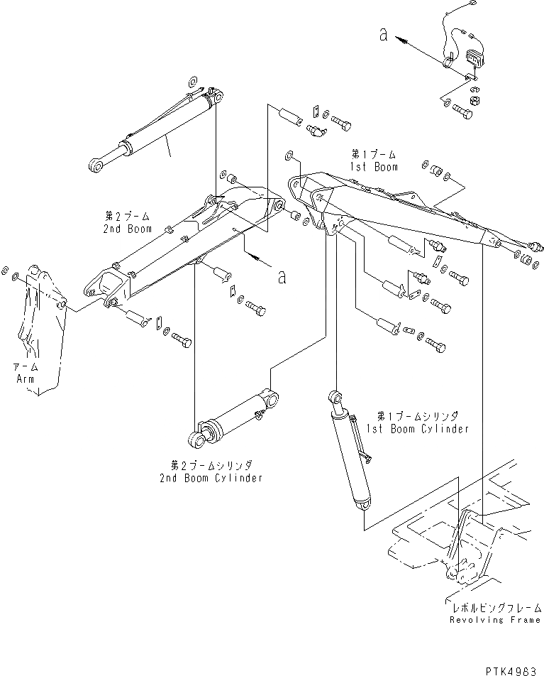
Запчасти Komatsu PC70-7 ЦИЛИНДР РУКОЯТИ РАБОЧЕЕ ОБОРУДОВАНИЕ

Схема запчастей Komatsu PC70-7 - ЦИЛИНДР РУКОЯТИ РАБОЧЕЕ ОБОРУДОВАНИЕ
1
FIT
1:1
100%

Артикул

Название

Примечание

Количество

1

707-00-XA050

CYLINDER GROUP,ARM

|1

201-63-X2511

CYLINDER GROUP,ARM

|1

201-63-X2313

CYLINDER GROUP,ARM

|1

201-63-X2312

CYLINDER GROUP,ARM

Выбрано товаров: 4