Запчасти Komatsu PC700LC-8E0 ПРОВОДКА, АККУМУЛЯТОРН. ОТСЕК(№-) ПРОВОДКА, BAD ТОПЛИВН. И ПЛОХ. ТОПЛИВО СПЕЦ-ЯIFICATION, ВОДН.+DUST, ЕС ARRANGEMENT, CHINA БЕЗОПАСН. REGULATION, С АККУМУЛЯТОР, БОЛЬШ. C

Схема запчастей Komatsu PC700LC-8E0 - ПРОВОДКА, АККУМУЛЯТОРН. ОТСЕК  (№-) ПРОВОДКА, BAD ТОПЛИВН. И ПЛОХ. ТОПЛИВО СПЕЦ-ЯIFICATION, ВОДН.+DUST, ЕС ARRANGEMENT, CHINA БЕЗОПАСН. REGULATION, С АККУМУЛЯТОР, БОЛЬШ. C
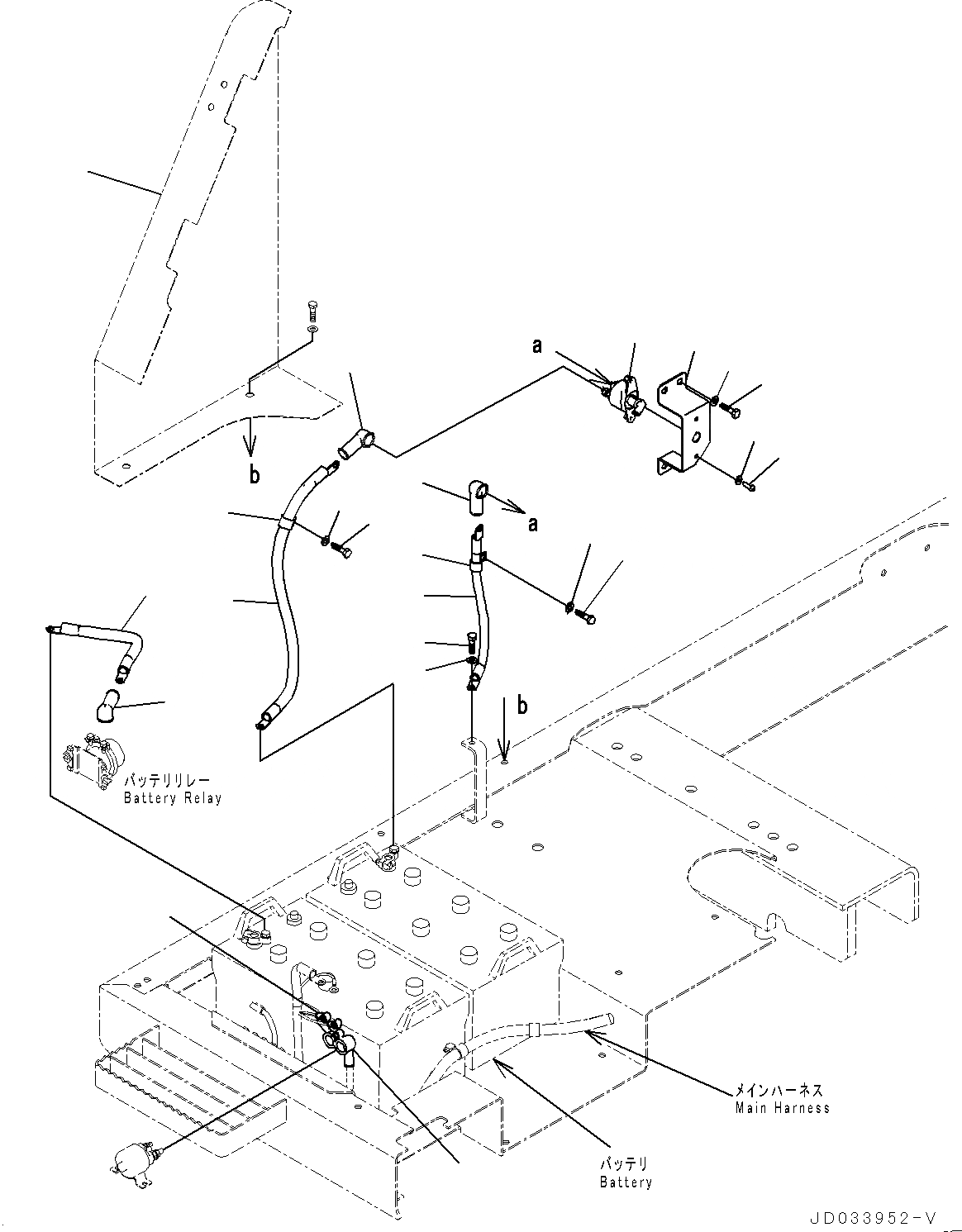
22
14
14
18
8
11
13
12
15
6
2
1
3
7
10
9
17
16
21
20
19
5
4
FIT
1:1
100%

Артикул

Название

Примечание

Количество

1

08028-45050

Cable, Ground

2

08028-GE060

Cable, Battery

3

08038-00035

Cap, Terminal

4

08038-00519

Cap, Terminal

5

08038-06037

Cap

6

01010-81025

Bolt

7

01643-31032

Washer

8

21M-06-31411

Plate

9

01010-81225

Bolt

10

01643-31232

Washer

11

08068-00001

Switch, Battery

12

01245-00825

Screw

13

01643-70823

Washer

14

08038-00035

Cap, Terminal

15

04434-51912

Clip

16

01010-81225

Bolt

17

01643-31232

Washer

18

08028-EE075

Cable, Ground

19

04434-52312

Clip

20

01010-81225

Bolt

21

01643-31232

Washer

22

21M-54-33210

Cover

Выбрано товаров: 22