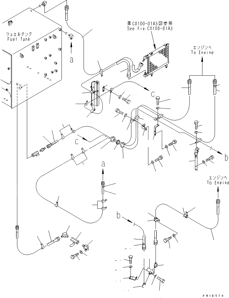
Запчасти Komatsu PC750-6 ТОПЛИВОПРОВОД.(№-) ТОПЛИВН. БАК. AND КОМПОНЕНТЫ

Схема запчастей Komatsu PC750-6 - ТОПЛИВОПРОВОД.(№-) ТОПЛИВН. БАК. AND КОМПОНЕНТЫ
1
2
3
4
5
5
5
5
6
6
6
6
7
7
7
7
7
7
7
8
8
8
9
9
10
11
11
12
12
13
13
13
13
14
14
14
14
15
16
17
18
19
19
20
21
22
22
23
23
24
25
25
26
26
27
27
28
29
29A
29A
30
31
32
33
34
35
FIT
1:1
100%

Артикул

Название

Примечание

Количество

1

209-04-71150

BRACKET

2

196-61-31490

BRACKET

3

209-04-77140

PLATE

4

209-06-77230

BRACKET

5

01010-81225

BOLT

6

01643-31232

WASHER

7

04434-51512

CLIP

8

04434-51912

CLIP

9

04435-51512

CLIP

10

04435-51912

CLIP

11

04434-52712

CLIP

12

07095-30420

CUSHION

13

01010-81225

BOLT

14

01643-31232

WASHER

15

209-04-77121

BRACKET

16

07058-20000

FILTER ASS'Y

17

01010-80830

BOLT

18

01643-30823

WASHER

19

195-04-12280

ELBOW

20

01010-81225

BOLT

20

01010-81230

BOLT

21

01643-31232

WASHER

22

07621-00426

HOSE

23

20Y-62-22790

BAND, RED

24

07621-00415

HOSE

25

07621-00340

HOSE

26

20Y-62-22810

BAND, YELLOW

27

209-04-77171

HOSE, 3300MM

28

209-04-77180

HOSE, 900MM

29

08037-05016

GROMMET

29A

08034-20536

BAND

30

07700-40460

VALVE

31

209-04-51140

ELBOW

32

01010-81230

BOLT

33

01643-31232

WASHER

34

195-04-12280

ELBOW

35

209-04-77220

HOSE

Выбрано товаров: 37