Запчасти Komatsu PC750SE-6K-01 ЛЕВ. КРЫШКА(КАБИНА)(№K-K999) ЧАСТИ КОРПУСА

Схема запчастей Komatsu PC750SE-6K-01 - ЛЕВ. КРЫШКА(КАБИНА)(№K-K999) ЧАСТИ КОРПУСА
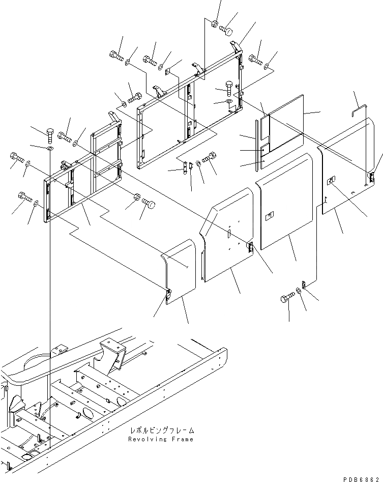
1
2
3
4
5
6
7
7
8
9
10
11
11
12
13
14
15
16
17
18
19
20
21
21
22
23
24
25
26
27
28
29
30
31
32
33
34
35
36
37
38
39
40
40
41
41
FIT
1:1
100%

Артикул

Название

Примечание

Количество

|1

209-54-K1021

COVER ASS'Y

|1

209-54-K1020

COVER ASS'Y

1

209-54-73213

FRAME

|1

209-54-73212

FRAME

2

20Y-54-11611

STOPPER

3

01580-11008

NUT

4

209-54-73232

COVER

5

01010-81230

BOLT

6

01010-81220

BOLT

7

01643-31232

WASHER

8

209-54-73241

COVER

9

01010-81230

BOLT

10

01643-31232

WASHER

11

20Y-54-K7450

HINGE

|12

209-54-K1012

COVER ASS'Y

|12

209-54-K1011

COVER ASS'Y

|12

209-54-K1010

COVER ASS'Y

12

209-54-73223

FRAME

|12

209-54-73222

FRAME

13

205-54-51970

DOVE TAIL

14

01010-80616

BOLT

15

01643-30623

WASHER

16

209-54-63260

BRACKET

17

01010-81230

BOLT

18

01643-31232

WASHER

19

20Y-54-11611

STOPPER

20

01580-11008

NUT

21

209-54-K1421

COVER

|21

209-54-K1420

COVER

|21

209-54-78480

COVER

22

209-54-74681

SHEET

23

198-54-41982

LOCK ASS'Y

24

20Y-54-K7450

HINGE

25

01010-81230

BOLT

26

01643-31232

WASHER

27

20Y-54-33170

BRACKET

28

01010-81230

BOLT

29

01643-31232

WASHER

30

205-54-53550

DOVE TAIL

31

01010-80616

BOLT

32

01643-30623

WASHER

33

20E-54-K2230

BAR

34

01010-81230

BOLT

35

01643-31232

WASHER

36

209-54-78430

SHEET

37

209-54-78440

SHEET

38

209-54-78460

SHEET

39

209-54-78470

SHEET

40

01010-81230

BOLT

41

01643-31232

WASHER

Выбрано товаров: 50