Запчасти Komatsu PC750SE-6K-01 ДОПОЛН. РАБОЧ. ОСВЕЩЕНИЕ И ПОДСВЕТКА СТУПЕНЕЙ (С ВЕРХН. ЗАЩИТОЙ)(№K-) ЭЛЕКТРИКА

Схема запчастей Komatsu PC750SE-6K-01 - ДОПОЛН. РАБОЧ. ОСВЕЩЕНИЕ И ПОДСВЕТКА СТУПЕНЕЙ (С ВЕРХН. ЗАЩИТОЙ)(№K-) ЭЛЕКТРИКА
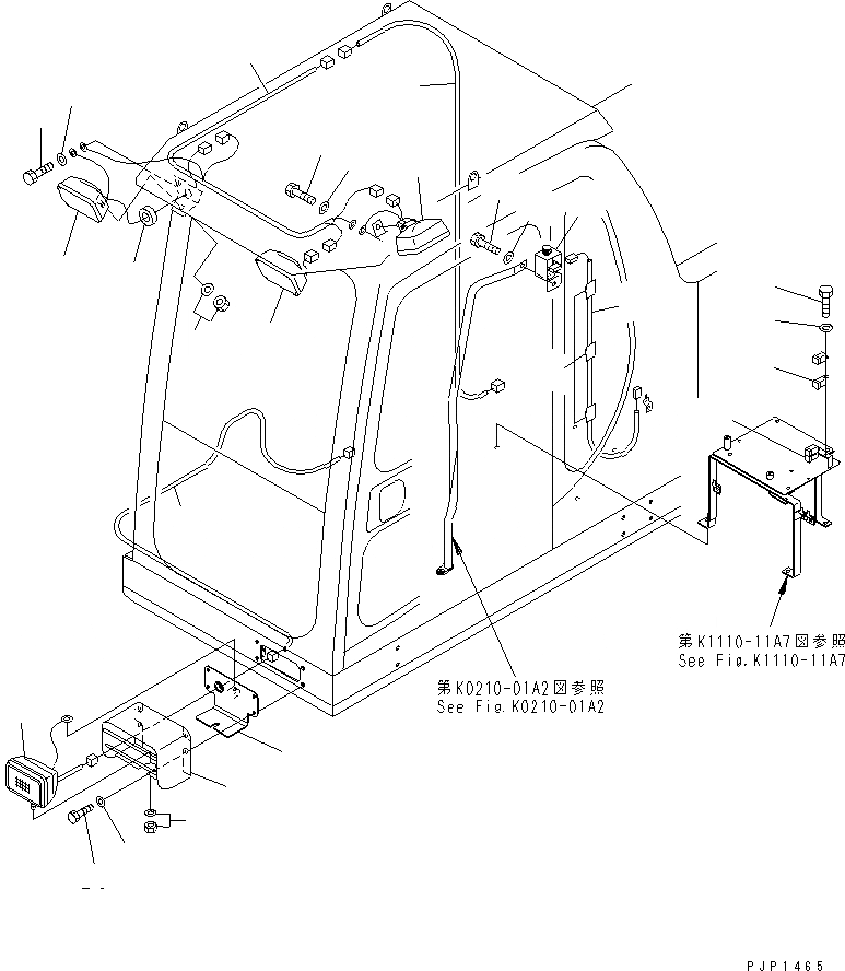
1
1
1
2
3
4
5
6
7
8
9
10
11
12
13
14
15
15
16
17
18
18
19
20
21
22
23
FIT
1:1
100%

Артикул

Название

Примечание

Количество

1

205-06-K1223

WORK LAMP ASS'Y

|1

205-06-K1890

BULB¤ 70W

2

21M-06-K1140

WIRING HARNESS

3

01010-81020

BOLT

4

01643-31032

WASHER

5

08037-02512

GROMMET

6

209-06-78510

WIRING HARNESS

7

205-06-K1223

WORK LAMP ASS'Y

|7

205-06-K1890

BULB¤ 70W

8

01010-81020

BOLT

9

01643-31032

WASHER

10

209-06-72411

SWITCH

11

01010-81030

BOLT

12

01643-31032

WASHER

13

209-06-72431

WIRING HARNESS

14

205-54-K4030

CLIP

15

569-06-61960

RELAY

16

01010-80616

BOLT

17

01643-30623

WASHER

18

205-06-K1223

WORK LAMP ASS'Y

|18

205-06-K1890

BULB¤ 70W

19

21M-06-K1170

BRACKET

20

01010-81230

BOLT

21

01643-31232

WASHER

22

21M-06-15530

BRACKET

23

21M-06-K1150

WIRING HARNESS

Выбрано товаров: 26