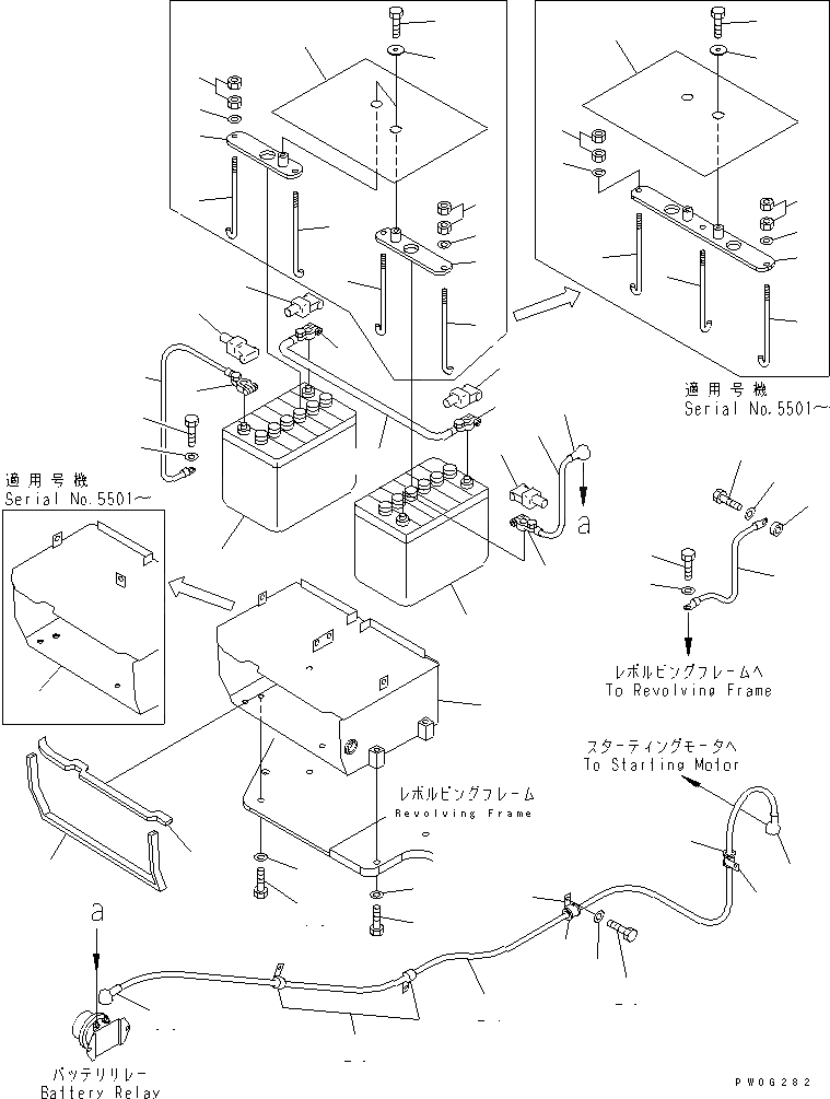
Запчасти Komatsu PC78US-6 АККУМУЛЯТОР И КРЕПЛЕНИЕ (ВЫСОК. ЕМК.)(№-) ЭЛЕКТРИКА

Схема запчастей Komatsu PC78US-6 - АККУМУЛЯТОР И КРЕПЛЕНИЕ (ВЫСОК. ЕМК.)(№-) ЭЛЕКТРИКА
1
1
2
2
3
3
4
4
4
5
5
5
5
5
5
5
6
6
6
6
7
7
7
7
8
8
9
9
10
10
11
11
12
13
14
15
16
17
18
19
20
21
22
23
23
23
24
25
26
26
27
27
28
29
30
30
31
32
33
34
35
36
37
37
FIT
1:1
100%

Артикул

Название

Примечание

Количество

1

101-06-21410

BATTERY, WET(80D26R)

2

08000-00000

TERMINAL, (+)

3

08000-00001

TERMINAL, (-)

4

21W-06-41132

BRACKET

4

21W-06-41131

BRACKET

5

21W-06-41390

BOLT

5

21W-06-41390

BOLT

6

01643-31032

WASHER

6

01643-31032

WASHER

7

01580-11008

NUT

7

01580-11008

NUT

8

203-54-55660

COLLAR

9

01010-81025

BOLT

10

21W-06-41561

SHEET

10

21W-06-41560

SHEET

11

21W-06-41122

BOX

11

21W-06-41121

BOX

12

21W-06-41271

SEAL

13

21W-06-41281

SEAL

14

01010-81240

BOLT

15

01643-31232

WASHER

16

01010-81230

BOLT

17

01643-31232

WASHER

18

08028-CH050

CABLE, BATTERY

19

08028-48055

CABLE, GROUND

20

01010-81020

BOLT

21

01643-31032

WASHER

22

08038-22009

CAP

23

08038-42009

CAP

24

21W-06-41261

CABLE

25

08036-01814

CLIP

25

08036-01214

CLIP

26

07095-20318

CUSHION

27

04434-52511

CLIP

28

01010-81025

BOLT

29

01643-31032

WASHER

30

08038-04030

CAP

31

08028-68030

CABLE, BATTERY

32

08038-04030

CAP

33

08028-48035

CABLE, GROUND

34

6205-81-9580

SPACER

34

208-01-11270

WASHER

35

01010-81045

BOLT

36

01010-81020

BOLT

37

01643-31032

WASHER

37

01643-31032

WASHER

Выбрано товаров: 0