Запчасти Komatsu PC78US-8 КАБИНА, ДВЕРЬ ФИКСАТОР ОТКРЫТИЯ (№-) КАБИНА, С KOMTRAX, ДЛЯ СТРАН ЕС ARRANGEMENT

Схема запчастей Komatsu PC78US-8 - КАБИНА, ДВЕРЬ ФИКСАТОР ОТКРЫТИЯ (№-) КАБИНА, С KOMTRAX, ДЛЯ СТРАН ЕС ARRANGEMENT
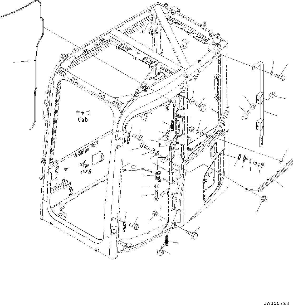
1
2
3
4
5
6
7
8
9
10
12
13
14
15
16
17
19
20
21
22
23
24
4
11
11
12
23
26
15
18
11
4
4
26
25
11
FIT
1:1
100%

Артикул

Название

Примечание

Количество

|$0

22P-53-00063

Cab Assembly

|$1

22P-53-00062

Cab Assembly

|$2

22P-53-00061

Cab Assembly

|$3

22P-53-00060

Cab Assembly

1

22P-53-17411

Rail,Center

2

205-54-71731

Striker

3

20Y-54-35470

Striker

4

22B-54-16690

Striker

5

20U-54-25190

Washer

6

01240-01025

Screw

7

20U-54-24661

Plate

8

20Y-54-35480

Shim, T=1.6mm

9

01240-01025

Screw

10

20U-54-25190

Washer

11

01435-40612

Bolt

12

22M-54-16550

Packing

13

01240-00820

Screw, Hexagon Socket Head

14

01643-70823

Washer

15

208-53-11330

Washer

16

01546-10812

Nut

17

01584-30806

Nut

18

22P-53-17150

Trim

19

22P-53-17441

Stopper

20

01010-D1225

Bolt

21

01643-71232

Washer

22

22M-54-24860

Stopper, L=45mm

23

20U-54-25231

Nut

24

22B-54-16680

Stopper

25

20Y-54-11611

Stopper

26

01580-11008

Nut

Выбрано товаров: 30