Запчасти Komatsu PC78US-8 КАБИНА, ПЕРЕДН. ОКНА (№-) КАБИНА, С KOMTRAX

Схема запчастей Komatsu PC78US-8 - КАБИНА, ПЕРЕДН. ОКНА (№-) КАБИНА, С KOMTRAX
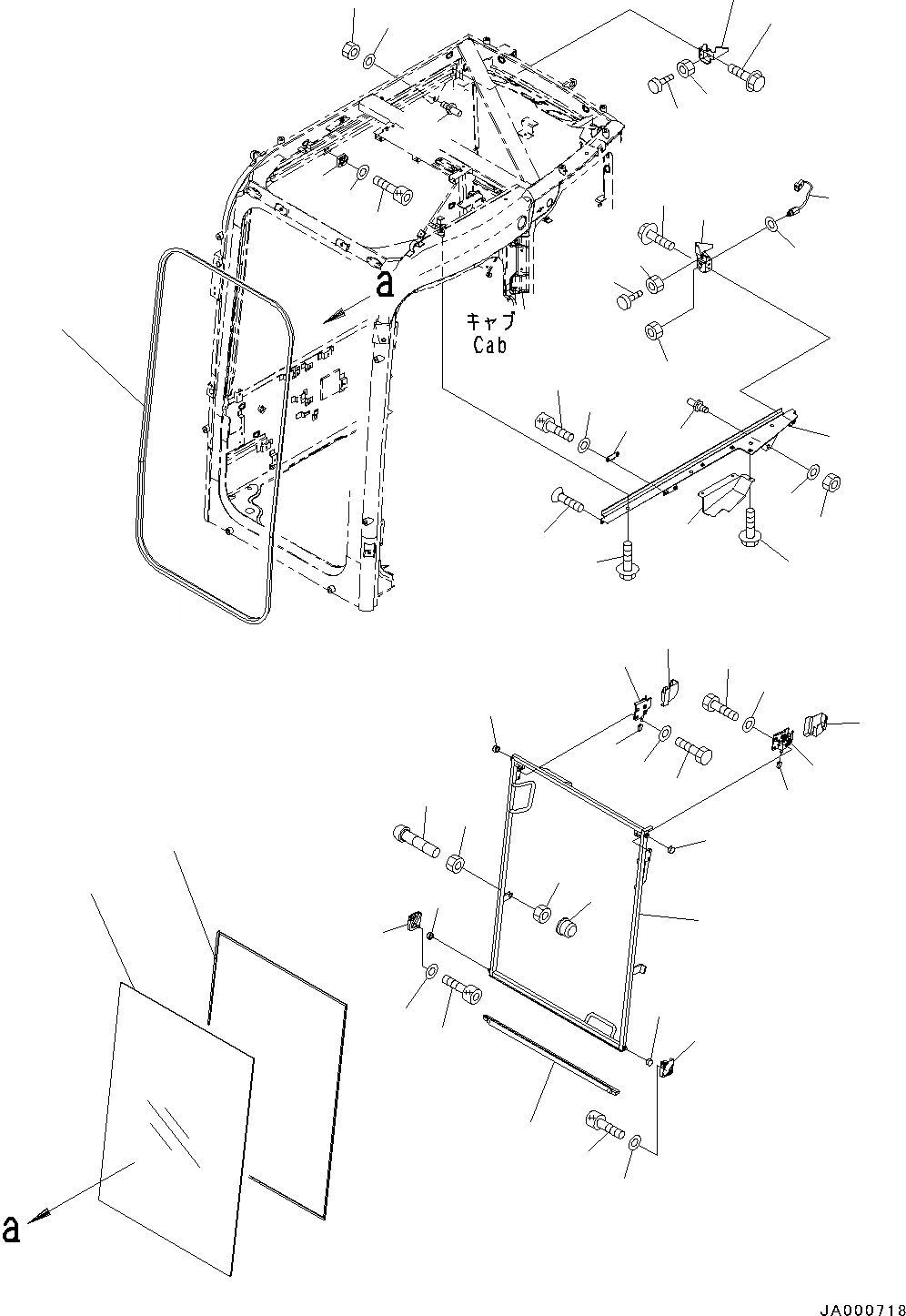
28
29
30
15
13
13
27
26
25
24
23
22
16
15
14
2
1
4
3
11
12
12
11
10
9
8
7
6
5
13
13
17
18
19
20
21
31
32
33
34
35
36
37
38
39
40
42
43
44
41
44
43
42
45
34
35
36
FIT
1:1
100%

Артикул

Название

Примечание

Количество

|$0

22P-53-00013

Cab Assembly

|$1

22P-53-00012

Cab Assembly

|$2

22P-53-00011

Cab Assembly

|$3

22P-53-00081

Window Assembly

1

22P-53-18312

Frame

2

22P-53-18320

Glass

3

22P-53-18380

Seal

4

22P-53-18371

Seal

5

22B-54-15411

Lock Assembly

6

22B-54-15440

Case

7

22B-54-15470

Knob

8

22B-54-15421

Lock Assembly

9

22B-54-15450

Case

10

22B-54-15480

Knob

11

01010-D0816

Bolt

12

208-53-11330

Washer

13

22B-54-28591

Roller

14

22B-54-15560

Stopper

15

01580-11008

Nut

16

20Y-54-65540

Cap

17

22P-53-18511

Plate

18

01435-41020

Bolt

19

01240-00616

Screw

20

22P-53-18521

Bracket

21

01435-40616

Bolt

22

22P-53-18531

Block

23

01252-80616

Bolt

24

01641-50608

Washer

25

20Y-54-52192

Block

26

01252-80616

Bolt

27

01641-50608

Washer

28

22B-54-15682

Block

29

01252-80625

Bolt, Hexagon Socket Head

30

01643-70623

Washer

31

22B-54-28440

Stopper

32

01252-80616

Bolt

33

01643-70623

Washer

34

20Y-54-51621

Striker

35

20T-54-74550

Nut

36

01643-71032

Washer

37

21J-06-12440

Switch, Wiper Limit

38

01583-11811

Nut

39

01640-21826

Washer, Flat

40

22P-53-18481

Bracket

41

22P-53-18491

Bracket

42

01435-40616

Bolt

43

20Y-54-11611

Stopper

44

01580-11008

Nut

45

22B-54-28350

Seal

Выбрано товаров: 49