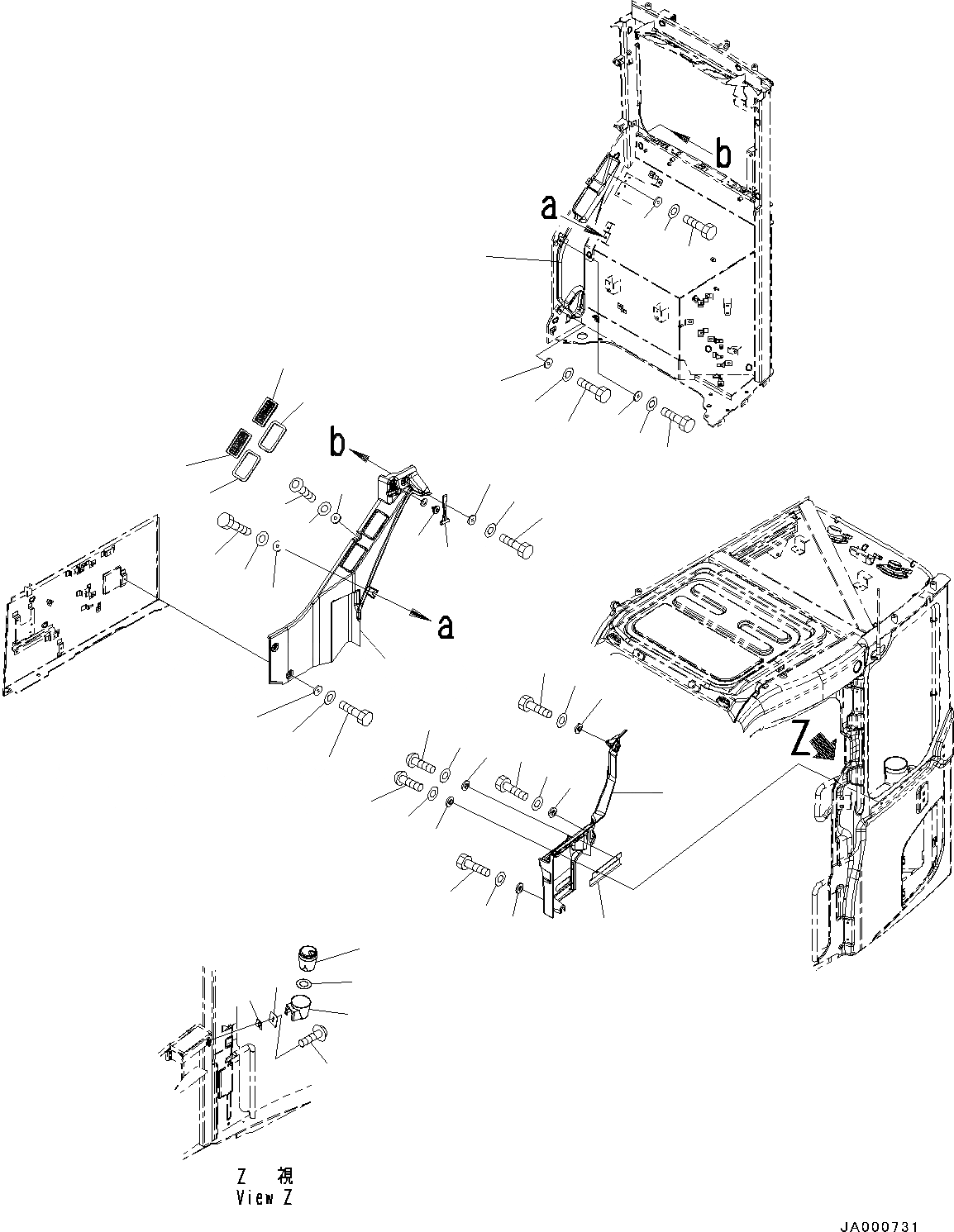
Запчасти Komatsu PC78US-8 КАБИНА, ЗАДН. КРЫШКА И ЗАДН. ВОЗДУХОВОД (№-) КАБИНА, С KOMTRAX

Схема запчастей Komatsu PC78US-8 - КАБИНА, ЗАДН. КРЫШКА И ЗАДН. ВОЗДУХОВОД (№-) КАБИНА, С KOMTRAX
1
2
4
3
6
7
8
2
4
3
3
4
2
7
8
2
2
26
27
27
26
26
25
24
27
25
25
5
16
11
12
13
11
18
10
10
11
12
13
14
15
18
9
12
13
11
17
19
23
20
21
22
FIT
1:1
100%

Артикул

Название

Примечание

Количество

1

22P-53-15361

Cover

2

20Y-53-12310

Collar

3

01010-D0616

Bolt

4

01643-70623

Washer

5

22B-54-17380

Hammer

6

22P-53-18960

Plate

7

01245-00616

Screw

8

01643-70623

Washer

9

22P-53-15371

Cover Assembly

10

22B-54-25430

Seal

11

20Y-53-12310

Collar

12

01010-D0616

Bolt

13

01643-70623

Washer

14

01245-00616

Screw

15

01643-70623

Washer

16

22B-54-16461

Rivet

17

20Y-43-41491

Ashtray

18

22U-979-2381

Grille

19

425-926-3751

Holder

20

426-925-3890

Plate

21

22P-53-12981

Plate

22

01023-70616

Screw

23

20Y-43-41970

Sheet

24

22P-979-1321

Duct

25

01010-D0616

Bolt

26

01643-70623

Washer

27

20Y-53-12310

Collar

Выбрано товаров: 0