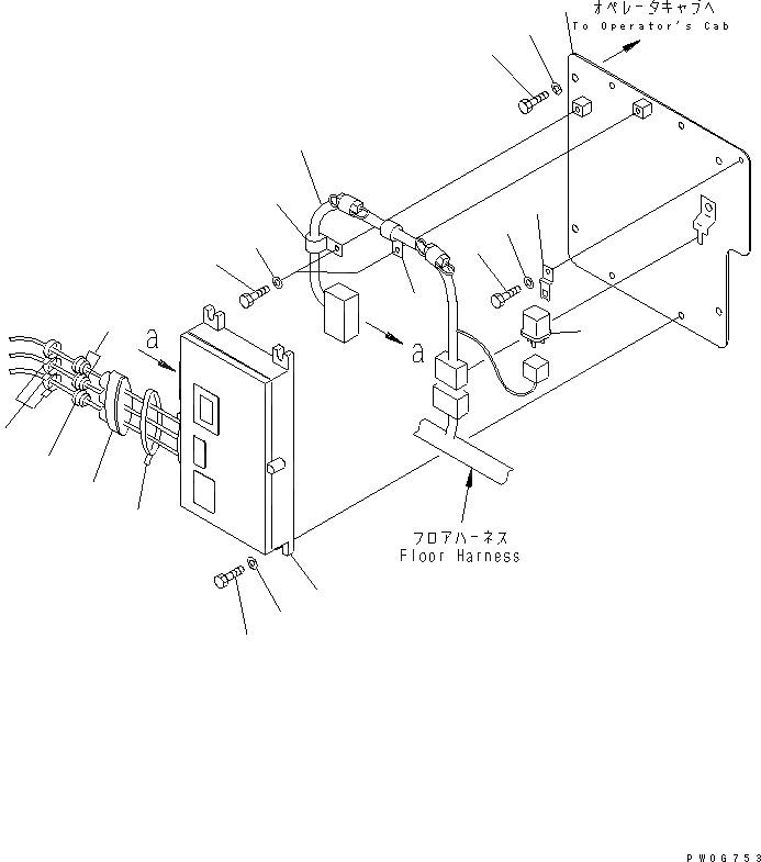
Запчасти Komatsu PC78UU-6 КАБИНА (KOMTRAX Э/ПРОВОДКА)(№-) КАБИНА ОПЕРАТОРА И СИСТЕМА УПРАВЛЕНИЯ

Схема запчастей Komatsu PC78UU-6 - КАБИНА (KOMTRAX Э/ПРОВОДКА)(№-) КАБИНА ОПЕРАТОРА И СИСТЕМА УПРАВЛЕНИЯ
1
2
3
4
5
6
7
8
8
9
10
11
12
13
14
15
16
16A
17
18
FIT
1:1
100%

Артикул

Название

Примечание

Количество

1

7826-20-5052

CONTROLLER

|1

7826-20-5051

CONTROLLER

2

01010-80825

BOLT

3

01643-30823

WASHER

4

21W-54-42451

PLATE

5

01010-80816

BOLT

6

01643-30823

WASHER

7

21W-06-41381

WIRING HARNESS

8

04434-51508

CLIP

9

01010-80820

BOLT

10

01643-30823

WASHER

11

569-06-61960

RELAY

12

287-06-16420

BRACKET

13

01010-80616

BOLT

14

01643-30623

WASHER

15

8A13-80-1110

COVER

16

8A13-80-1120

CAP

16A

8A13-80-1140

CAP

17

08034-20536

BAND

18

08034-20414

BAND

Выбрано товаров: 20