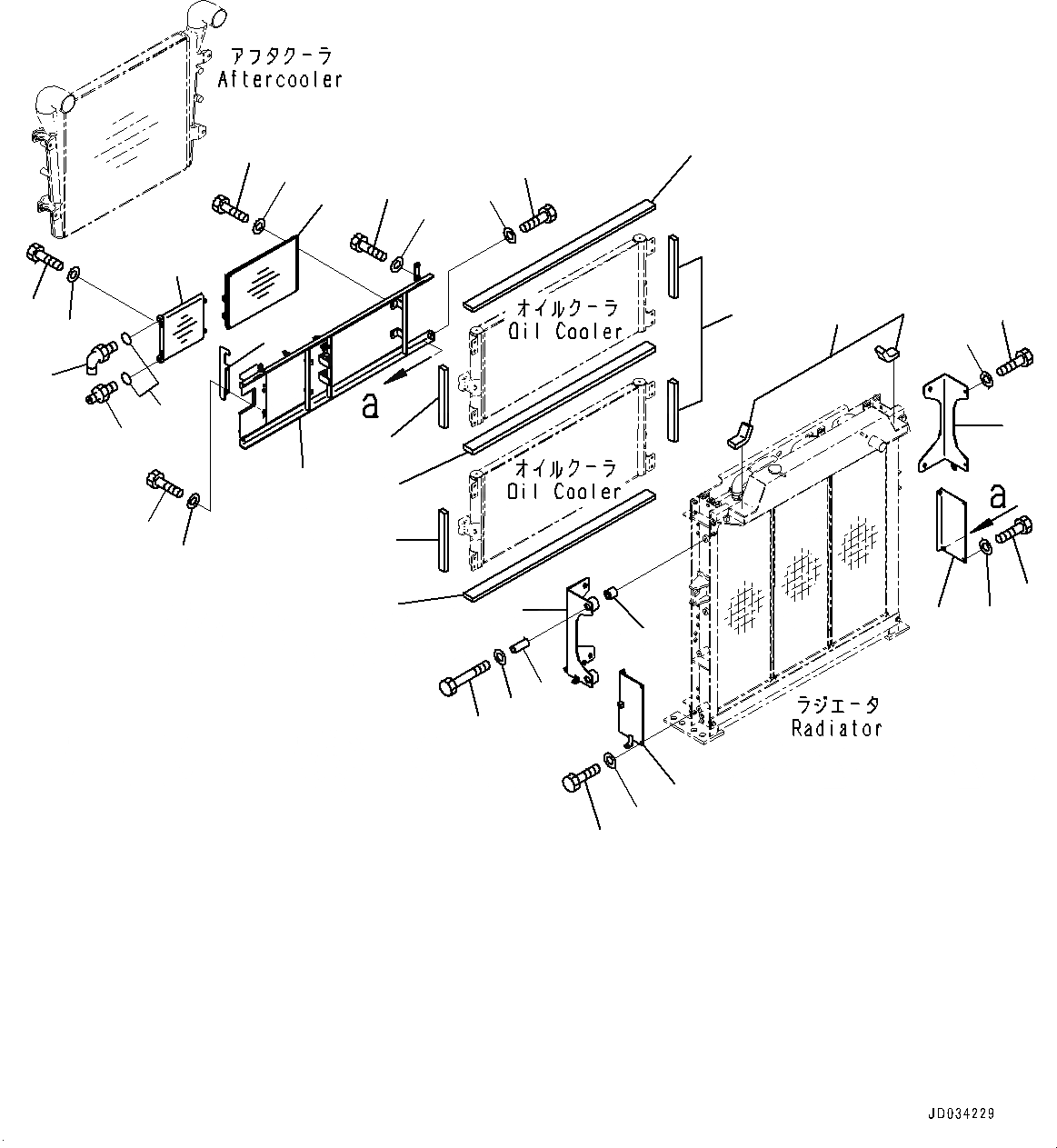
Запчасти Komatsu PC800-8E0 СИСТЕМА ОХЛАЖДЕНИЯ, КОРПУС (№-) СИСТЕМА ОХЛАЖДЕНИЯ, С 9AMP. ГЕНЕРАТОР, АВТОМАТИЧ. КОНДИЦ. ВОЗДУХА, БОЛ. WIND QUANTITY

Схема запчастей Komatsu PC800-8E0 - СИСТЕМА ОХЛАЖДЕНИЯ, КОРПУС (№-) СИСТЕМА ОХЛАЖДЕНИЯ, С 9AMP. ГЕНЕРАТОР, АВТОМАТИЧ. КОНДИЦ. ВОЗДУХА, БОЛ. WIND QUANTITY
13
30
31
22
24
23
14
15
27
26
15
14
30
29
31
30
25
21
19
17
18
20
16
28
12
11
6
4
5
8
7
1
11
12
10
9
3
2
FIT
1:1
100%

Артикул

Название

Примечание

Количество

1

209-03-41420

Bracket

2

01010-81225

Bolt

3

01643-31232

Washer

3

209-03-41430

Isolator Assembly

4

198-03-22290

Isolator

5

Bracket

6

21N-03-37960

Spacer

7

01010-81280

Bolt

8

175-54-34170

Washer

9

209-03-45470

Bracket

10

209-03-45460

Bracket

11

01010-81225

Bolt

12

01643-31232

Washer

13

209-03-45451

Bracket

14

01010-81235

Bolt

15

01643-31232

Washer

16

209-03-41130

Oil Cooler Assembly

17

01010-80820

Bolt

18

01643-30823

Washer

19

02781-00315

Union

20

02782-10315

Elbow

21

07002-12034

O-ring

22

208-979-7520

Condenser Assembly

23

01010-80616

Bolt

24

01643-30623

Washer

25

209-03-45480

Cover

26

01010-81025

Bolt

27

01643-31032

Washer

28

209-03-41550

Sheet

29

209-03-41510

Sheet

30

209-03-41520

Sheet

31

209-03-41530

Sheet

Выбрано товаров: 32