Запчасти Komatsu PC800SE-6 РАМА (ОТСЕК ДВИГАТЕЛЯ) (КАБИНА)(№-) ЧАСТИ КОРПУСА

Схема запчастей Komatsu PC800SE-6 - РАМА (ОТСЕК ДВИГАТЕЛЯ) (КАБИНА)(№-) ЧАСТИ КОРПУСА
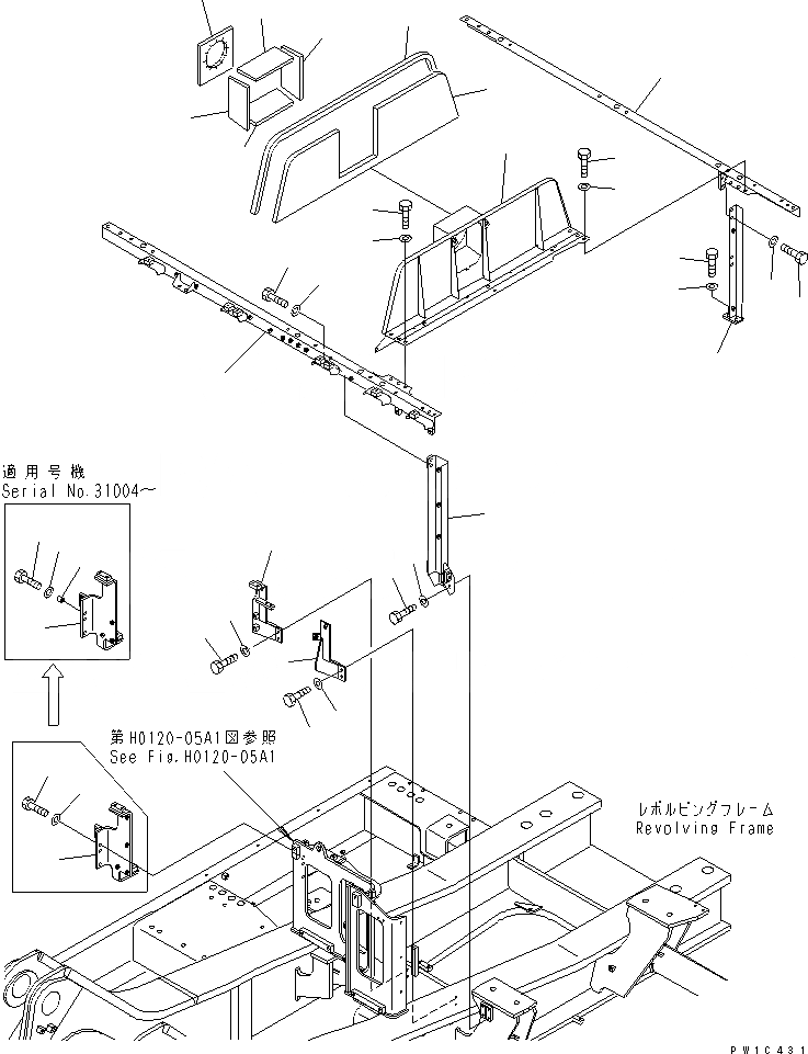
1
2
3
4
5
6
7
7
8
8
9
9
9A
10
11
12
13
14
15
16
17
18
19
20
21
22
23
24
25
26
27
28
29
29
30
30
31
FIT
1:1
100%

Артикул

Название

Примечание

Количество

1

209-54-77432

FRAME

1

209-54-77431

FRAME

2

01010-81230

BOLT

3

01643-31232

WASHER

4

209-54-77481

FRAME

5

01010-81230

BOLT

6

01643-31232

WASHER

7

209-54-77452

BRACKET

7

209-54-77451

BRACKET

8

01010-81460

BOLT

8

01010-81430

BOLT

9

01643-31445

WASHER

9A

198-21-12240

BOSS

10

209-53-11390

BRACKET

11

01010-81230

BOLT

12

01643-31232

WASHER

13

209-53-11410

BRACKET

14

01010-81230

BOLT

15

01643-31232

WASHER

16

209-54-77441

FRAME

17

01010-81230

BOLT

18

01643-31232

WASHER

19

209-54-77461

FRAME

20

01010-81230

BOLT

21

01643-31232

WASHER

22

209-54-77243

BRACKET

23

209-53-11971

SHEET

24

209-53-11981

SHEET

25

209-53-11990

SHEET

26

209-54-77211

SHEET

27

209-54-77251

SHEET

28

209-54-77272

SHEET

29

01010-81230

BOLT

30

01643-31232

WASHER

31

209-54-77262

SHEET

Выбрано товаров: 35