Запчасти Komatsu PC800SE-6 ВОЗД. СИСТЕМА (GOVERNER ТРУБЫ)(№-999) ВОЗД. СИСТЕМА

Схема запчастей Komatsu PC800SE-6 - ВОЗД. СИСТЕМА (GOVERNER ТРУБЫ)(№-999) ВОЗД. СИСТЕМА
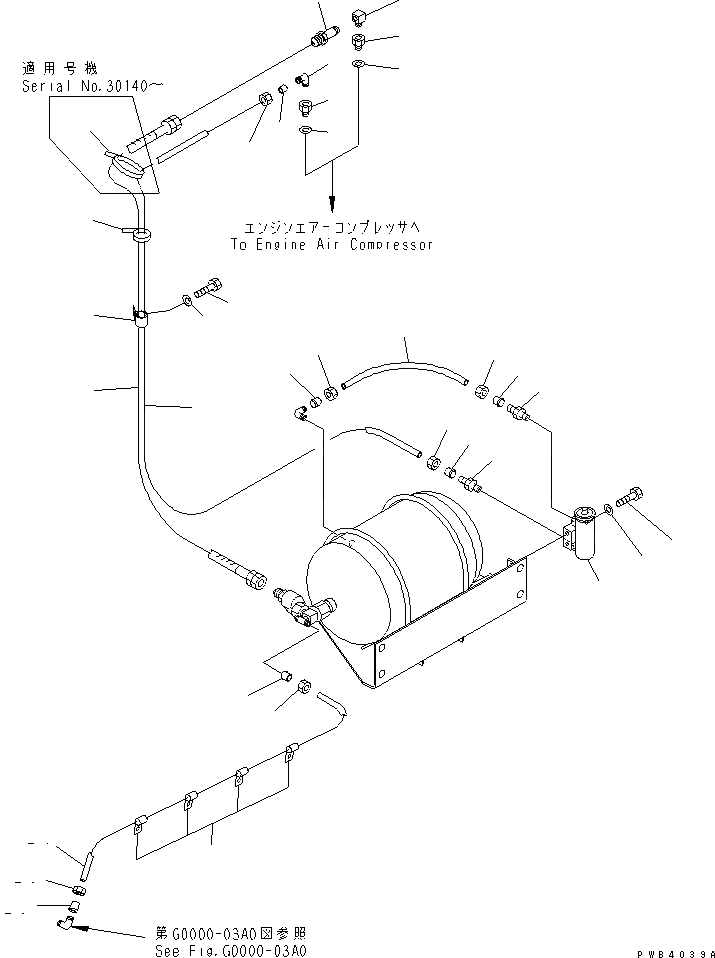
1
2
3
4
5
6
7
8
9
10
11
12
13
14
15
15
16
16
17
18
18
19
19
20
21
22
23
23
24
25
25
26
26
27
FIT
1:1
100%

Артикул

Название

Примечание

Количество

1

209-68-51170

NIPPLE

2

205-68-51210

GASKET

3

209-68-51180

ELBOW

4

209-68-51110

NIPPLE

5

07834-00413

ELBOW

6

209-68-51150

NIPPLE

7

07004-01525

GASKET

8

500-44-14110

AIR GOVERNOR ASS'Y

9

01010-50875

BOLT

10

01643-30823

WASHER

11

07836-00410

CONNECTOR

12

07836-00410

CONNECTOR

13

21T-68-71120

HOSE

14

07822-00405

TUBE

15

07831-00411

SLEEVE

16

07832-00410

NUT

17

07822-00423

TUBE

18

07831-00411

SLEEVE

19

07832-00410

NUT

20

140-06-18440

CLIP

21

01010-51220

BOLT

22

01643-31232

WASHER

23

08034-00536

BAND

23

08034-00536

BAND

24

07822-00631

TUBE

25

07831-00612

SLEEVE

26

07832-00614

NUT

27

113-04-22180

CLIP

Выбрано товаров: 28