Запчасти Komatsu PC800SE-6 ДОПОЛН. РАБОЧ. ОСВЕЩЕНИЕ (ИМПУЛЬСН. ОСВЕЩЕНИЕ)(№-7) ЭЛЕКТРИКА

Схема запчастей Komatsu PC800SE-6 - ДОПОЛН. РАБОЧ. ОСВЕЩЕНИЕ (ИМПУЛЬСН. ОСВЕЩЕНИЕ)(№-7) ЭЛЕКТРИКА
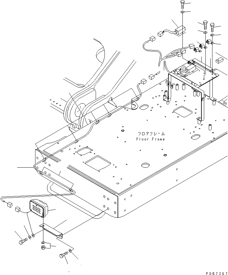
1
1
2
3
4
5
6
7
8
8
9
10
11
12
13
14
15
16
17
FIT
1:1
100%

Артикул

Название

Примечание

Количество

1

20Y-06-21480

WORK LAMP ASS'Y

2

209-06-73260

BRACKET

3

01010-81640

BOLT

4

01643-31645

WASHER

5

209-72-12230

WASHER

6

01010-80612

BOLT

7

209-06-73270

WIRING HARNESS

8

08051-00801

CLIP

9

209-06-62410

TIMER

10

01010-80620

BOLT

11

01643-30623

WASHER

12

08077-22401

FLASHER

13

01010-80620

BOLT

14

01643-30623

WASHER

15

569-06-61960

RELAY

16

01010-80620

BOLT

17

01643-30623

WASHER

Выбрано товаров: 17