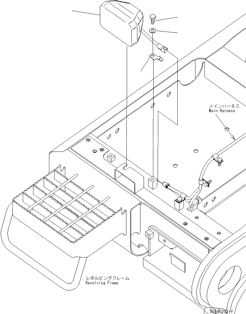
Запчасти Komatsu PC800SE-8 ПРОВОДКА (ЛАМПА РАБОЧ. ОСВЕЩЕНИЯ) ЭЛЕКТРИКА

Схема запчастей Komatsu PC800SE-8 - ПРОВОДКА (ЛАМПА РАБОЧ. ОСВЕЩЕНИЯ) ЭЛЕКТРИКА
1
2
3
4
FIT
1:1
100%

Артикул

Название

Примечание

Количество

1

21T-06-32810

WORKING LAMP ASS'Y

1

421-06-23330

BULB, 70W

2

08193-20012

CLIP

3

01010-81225

BOLT

4

01643-31232

WASHER

Выбрано товаров: 5