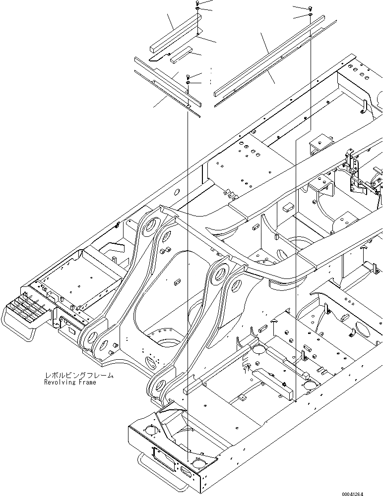
Запчасти Komatsu PC800SE-8R ОСНОВНАЯ РАМА (/) (ДЛЯ НАВЕСН. ОБОРУД.) ОСНОВНАЯ РАМА И ЕЕ ЧАСТИ

Схема запчастей Komatsu PC800SE-8R - ОСНОВНАЯ РАМА (/) (ДЛЯ НАВЕСН. ОБОРУД.) ОСНОВНАЯ РАМА И ЕЕ ЧАСТИ
1
2
3
4
5
6
7
8
9
10
11
12
13
FIT
1:1
100%

Артикул

Название

Примечание

Количество

|$2

209-46-41691

COVER

1

COVER

2

20Y-46-42253

SEAL

3

01010-81020

BOLT

4

01643-31032

WASHER

|$9

209-46-41651

COVER

5

209-46-41210

SEAL

6

COVER

7

20Y-46-42232

SEAL

8

01010-81035

BOLT

9

01643-31032

WASHER

|$17

207-46-71543

COVER

10

COVER

11

207-46-71561

SEAL

12

01010-81035

BOLT

13

01643-31032

WASHER

Выбрано товаров: 16