Запчасти Komatsu PC850-8E0 КРЕПЛЕНИЕ ОСН. КОНСТРУКЦИИING (№-) КРЕПЛЕНИЕ ОСН. КОНСТРУКЦИИING

Схема запчастей Komatsu PC850-8E0 - КРЕПЛЕНИЕ ОСН. КОНСТРУКЦИИING (№-) КРЕПЛЕНИЕ ОСН. КОНСТРУКЦИИING
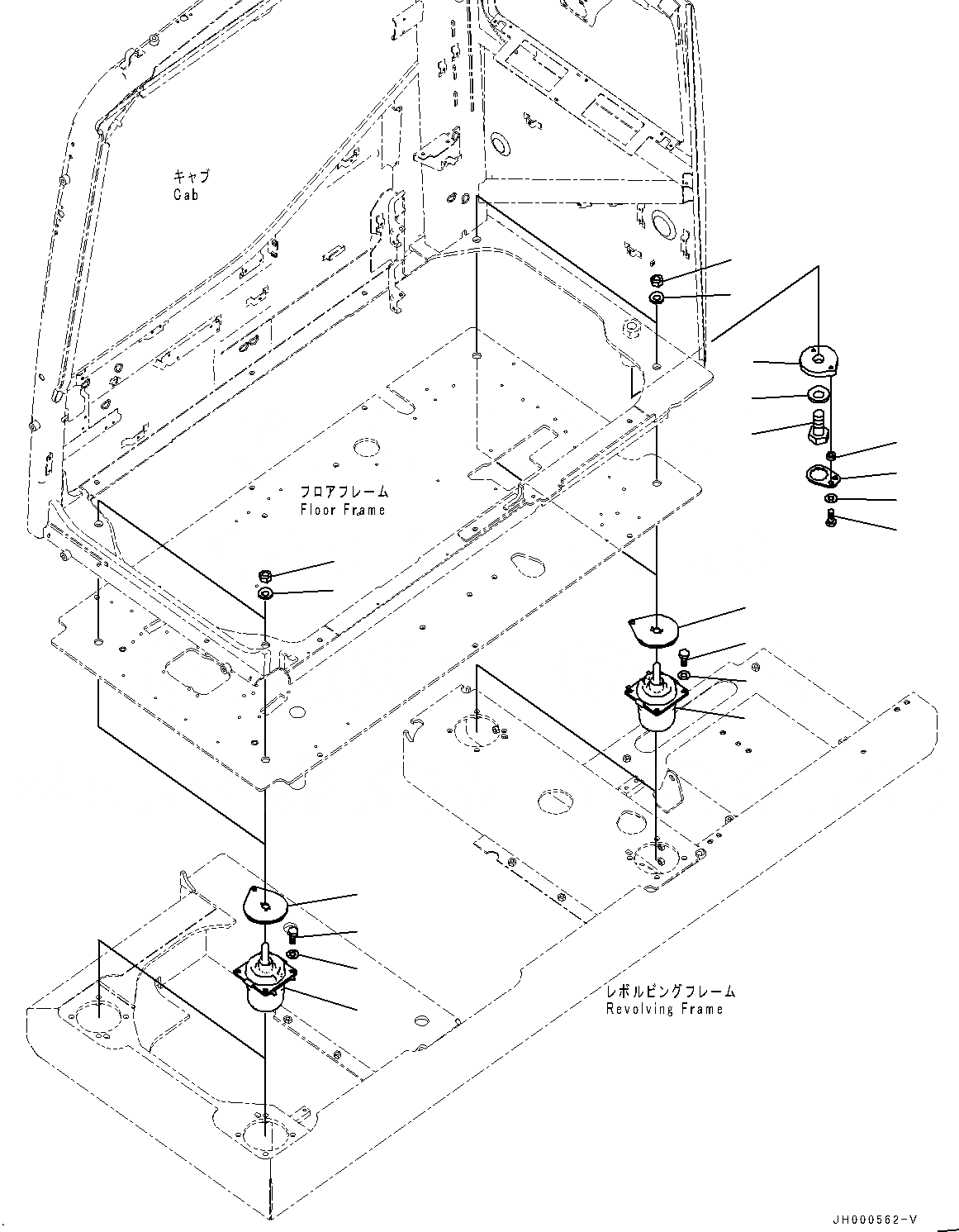
1
2
4
4
3
3
5
5
6
6
7
7
8
14
10
11
12
9
13
FIT
1:1
100%

Артикул

Название

Примечание

Количество

1

20Y-53-13113

Cushion

2

206-53-13121

Cushion

3

01580-12016

Nut

4

01643-32060

Washer

5

20Y-53-13130

Spacer

6

01010-81235

Bolt

7

01643-31232

Washer

8

20Y-53-13141

Plate

9

01011-83080

Bolt

10

01643-33080

Washer

11

20Y-53-13151

Lock

12

01010-81235

Bolt

13

01643-31232

Washer

14

198-43-15310

Collar

Выбрано товаров: 14