Запчасти Komatsu PC850-8R ДВЕРЬ (ПРАВ.) (КАБИНА) ЧАСТИ КОРПУСА

Схема запчастей Komatsu PC850-8R - ДВЕРЬ (ПРАВ.) (КАБИНА) ЧАСТИ КОРПУСА
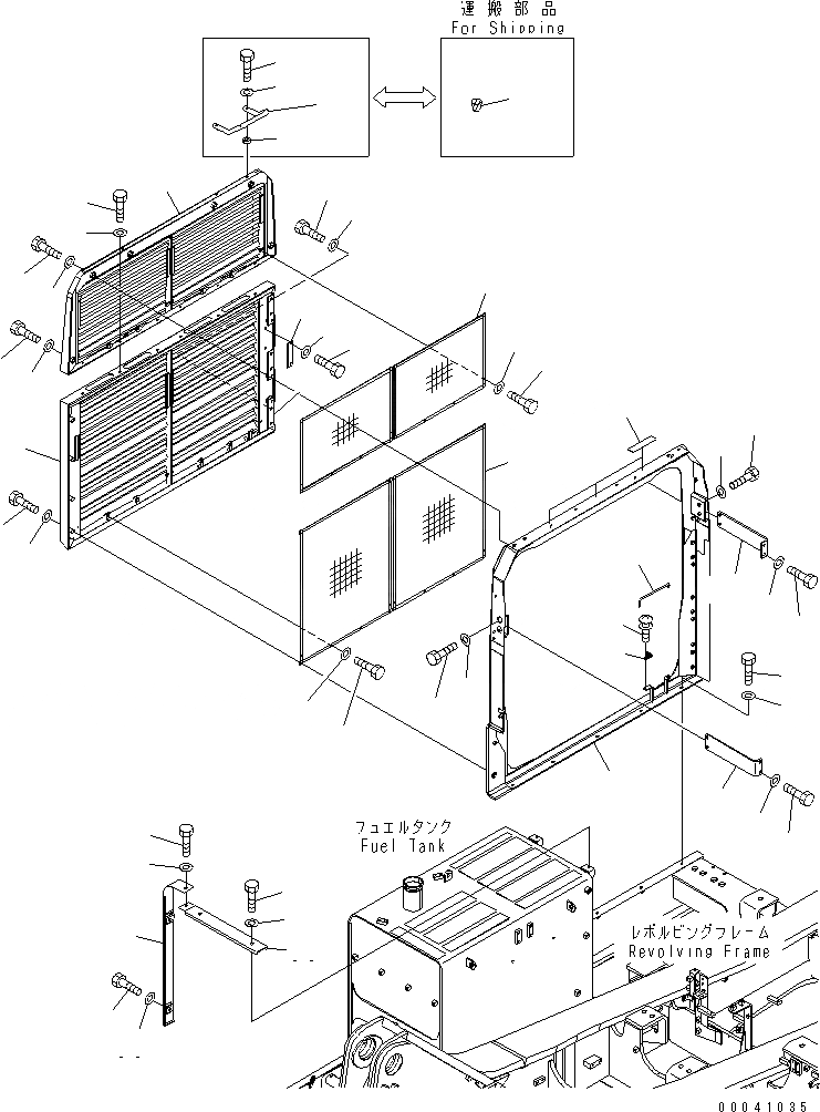
1
2
3
4
5
6
7
8
9
10
11
12
13
14
15
16
17
18
19
20
21
22
23
24
25
26
27
28
29
30
31
32
33
34
35
36
37
38
38
39
39
40
40
41
41
42
42
43
44
45
46
47
FIT
1:1
100%

Артикул

Название

Примечание

Количество

1

209-54-41511

FRAME

2

209-54-43270

SHEET

3

01010-81230

BOLT

4

01643-31232

WASHER

5

209-54-41521

DUCT

6

21K-54-22460

HINGE (WELDED)

7

209-54-41531

DUCT

8

01010-81225

BOLT

9

01643-31232

WASHER

10

209-54-41540

NET

11

01010-80816

BOLT

12

01643-30823

WASHER

13

209-54-41590

NET

14

01010-80816

BOLT

15

01643-30823

WASHER

16

209-53-13890

BRACKET

17

01010-81230

BOLT

18

01643-31232

WASHER

19

01010-81250

BOLT

20

01643-31232

WASHER

21

01010-81280

BOLT

22

01643-31232

WASHER

23

01010-81240

BOLT

24

01643-31232

WASHER

25

01011-81200

BOLT

26

01643-31232

WASHER

27

20Y-54-29232

BAR

28

20B-54-12210

SPRING

29

01023-10408

SCREW

30

209-54-41570

COVER

31

01010-81230

BOLT

32

175-54-34170

WASHER

33

209-54-41560

COVER

34

01010-81230

BOLT

35

01643-31232

WASHER

36

01010-81230

BOLT

37

175-54-34170

WASHER

38

209-54-41550

PLATE

39

01010-81240

BOLT

40

01643-31232

WASHER

41

01010-81240

BOLT

42

175-54-34170

WASHER

43

209-54-43610

GRIP

44

198-43-15310

COLLAR, 10MM

45

01010-81250

BOLT

46

01643-31232

WASHER

47

07049-01215

PLUG

Выбрано товаров: 47