Качественные детали и логистика
Оригинальные и аналоговые запчасти с доставкой по России, Казахстану и Беларуси
©2022 PartSell ООО "Система" ИНН 2463123282 ОГРН 1212400004838
Центральный офис: г. Красноярск, Академика Киренского, д.87, пом.4
Телефон: 8 (800) 777-65-74 Email: zakaz@partsell.ru
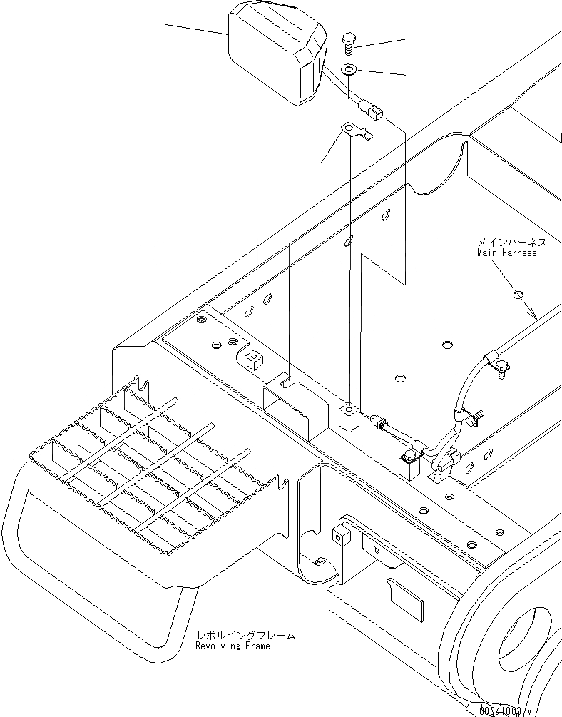
ПРОВОДКА (ЛАМПА РАБОЧ. ОСВЕЩЕНИЯ)
№
Артикул
Название
Примечание
Количество
1
21T-06-32810
WORKING LAMP ASS'Y
421-06-23330
BULB, 70W
2
08193-20012
CLIP
3
01010-81225
BOLT
4
01643-31232
WASHER
Выбрано товаров: 0