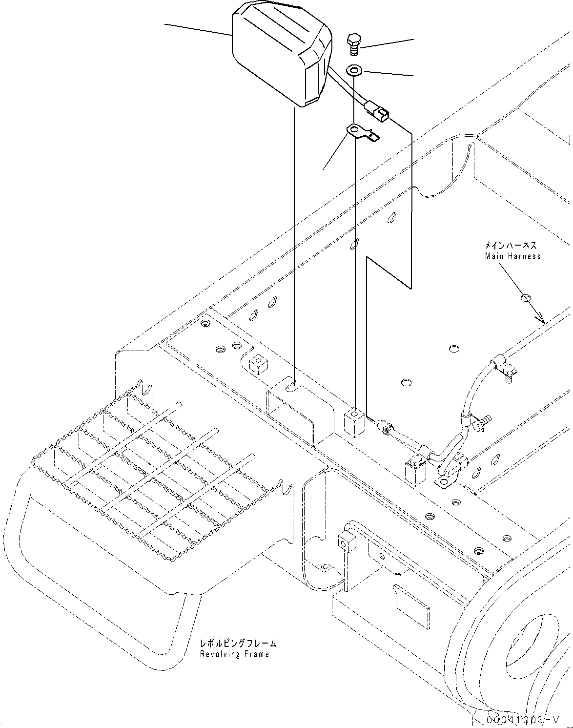
Запчасти Komatsu PC850SE-8R1 ПРОВОДКА, ЛАМПА РАБОЧ. ОСВЕЩЕНИЯ (№7-) ПРОВОДКА

Схема запчастей Komatsu PC850SE-8R1 - ПРОВОДКА, ЛАМПА РАБОЧ. ОСВЕЩЕНИЯ (№7-) ПРОВОДКА
1
2
3
4
FIT
1:1
100%

Артикул

Название

Примечание

Количество

1

21T-06-32810

Working Lamp Assembly

1

421-06-23330

Bulb, 70watt

2

08193-20012

Clip

3

01010-81225

Bolt

4

01643-31232

Washer

Выбрано товаров: 5