Качественные детали и логистика
Оригинальные и аналоговые запчасти с доставкой по России, Казахстану и Беларуси
©2022 PartSell ООО "Система" ИНН 2463123282 ОГРН 1212400004838
Центральный офис: г. Красноярск, Академика Киренского, д.87, пом.4
Телефон: 8 (800) 777-65-74 Email: zakaz@partsell.ru
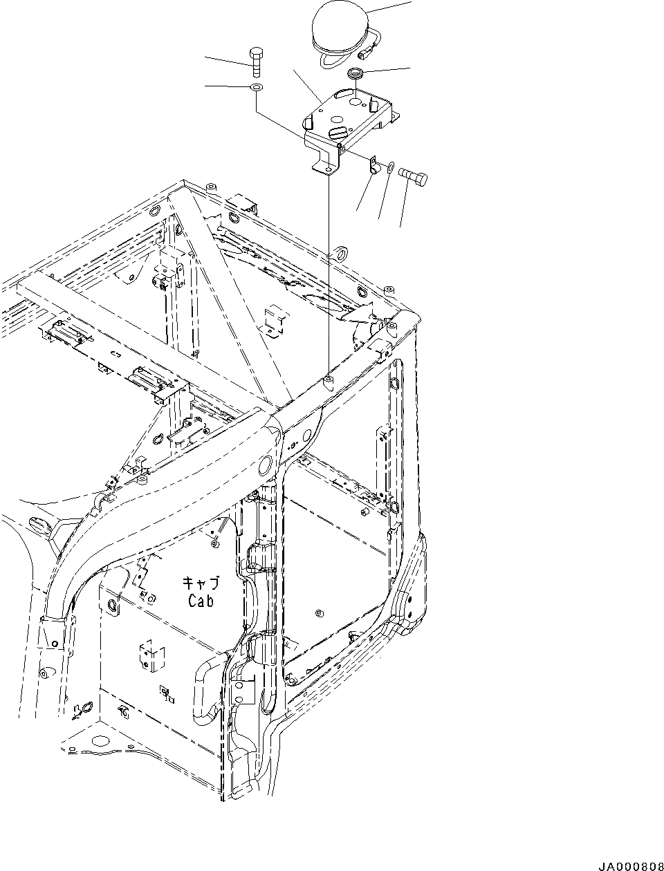
ПРОБЛЕСК. МАЯК (№-)
№
Артикул
Название
Примечание
Количество
1
22B-54-17612
Lamp Assembly
22B-54-17660
Bulb, 62watt, 28volt
2
08037-02512
Grommet
3
22P-53-18751
Bracket
4
01010-D1220
Bolt
5
01643-71232
Washer
6
04434-51410
Clip
7
01010-D1020
8
01643-71032
Выбрано товаров: 0