Запчасти Komatsu PC88MR-8 K8- OPERATOR КАБИНА ЗАДН. КРЫШКА - MACHINES С V POWER ВЫПУСКН. OPERATOR\XD S ОБСТАНОВКА И СИСТЕМА УПРАВЛЕНИЯ

Схема запчастей Komatsu PC88MR-8 - K8- OPERATOR КАБИНА ЗАДН. КРЫШКА - MACHINES С V POWER ВЫПУСКН. OPERATOR\XD S ОБСТАНОВКА И СИСТЕМА УПРАВЛЕНИЯ
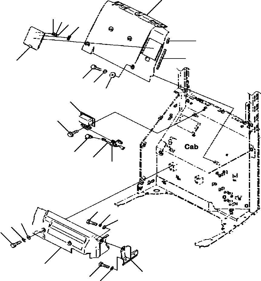
1
8
7
6
5
2
3
4
9
10
11
19
20
23
21
22
16
17
18
18
17
16
15
12
13
14
FIT
1:1
100%

Артикул

Название

Примечание

Количество

1

22P-53-15481

COVER

2

22P-53-15330

SHEET, BONDED

3

22P-53-15340

SHEET, BONDED

4

20Y-53-13631

COVER, FUSE

5

22U-43-22340

PULLER, FUSE

6

08041-01000

FUSE, 10A

7

08041-02000

FUSE, 20A

8

08041-03000

FUSE, 30A

9

01010-80616

BOLT

10

01643-30623

WASHER

11

20Y-53-12310

COLLAR

12

22P-979-1751

BRACKET

13

01010-80820

BOLT

14

01643-50823

WASHER

15

22P-53-15351

COVER

16

01010-80620

BOLT

17

01643-30623

WASHER

18

20Y-53-12310

COLLAR

19

22U-06-22251

CONVERTER, 12V POWER OUTLET

20

01435-00610

BOLT

21

22P-06-11770

HARNESS, WIRE - 12V POWER OUTLET

22

08211-01020

CLIP, WIRING HARNESS

23

198-Z11-2640

SOCKET ASSEMBLY, 12V POWER OUTLET

Выбрано товаров: 23