Запчасти Komatsu PW130-7K РАМА (КАБИНА) ЧАСТИ КОРПУСА

Схема запчастей Komatsu PW130-7K - РАМА (КАБИНА) ЧАСТИ КОРПУСА
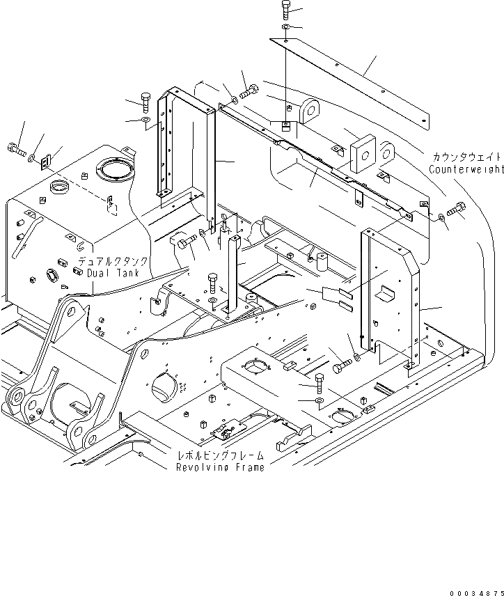
1
2
3
4
5
6
7
8
9
10
11
12
13
13
14
14
15
16
17
18
19
20
21
22
FIT
1:1
100%

Артикул

Название

Примечание

Количество

1

20E-54-21220

FRAME

2

205-03-71440

SHEET

3

01010-81225

BOLT

4

01643-31232

WASHER

5

01010-81225

BOLT

6

01643-31232

WASHER

7

20E-54-K6844

FRAME

|7

20E-54-K6843

FRAME

8

01010-81230

BOLT

9

01643-31232

WASHER

10

01010-81230

BOLT

11

01643-31232

WASHER

12

20E-54-K3070

FRAME

13

01010-81230

BOLT

14

01643-31232

WASHER

15

20E-54-21232

BRACKET

|15

20E-54-21230

BRACKET

16

20E-54-K6870

PLATE

17

01010-81220

BOLT

18

01643-31232

WASHER

19

20E-54-K2981

FRAME

20

01010-81225

BOLT

21

01643-31232

WASHER

22

20E-54-K3061

SHEET

Выбрано товаров: 24