Запчасти Komatsu PW148-8 ОСНОВН. КОНСТРУКЦИЯ УПЛОТНЕНИЕS K OPERATORґS ОБСТАНОВКА И СИСТЕМА УПРАВЛЕНИЯ

Схема запчастей Komatsu PW148-8 - ОСНОВН. КОНСТРУКЦИЯ УПЛОТНЕНИЕS K OPERATORґS ОБСТАНОВКА И СИСТЕМА УПРАВЛЕНИЯ
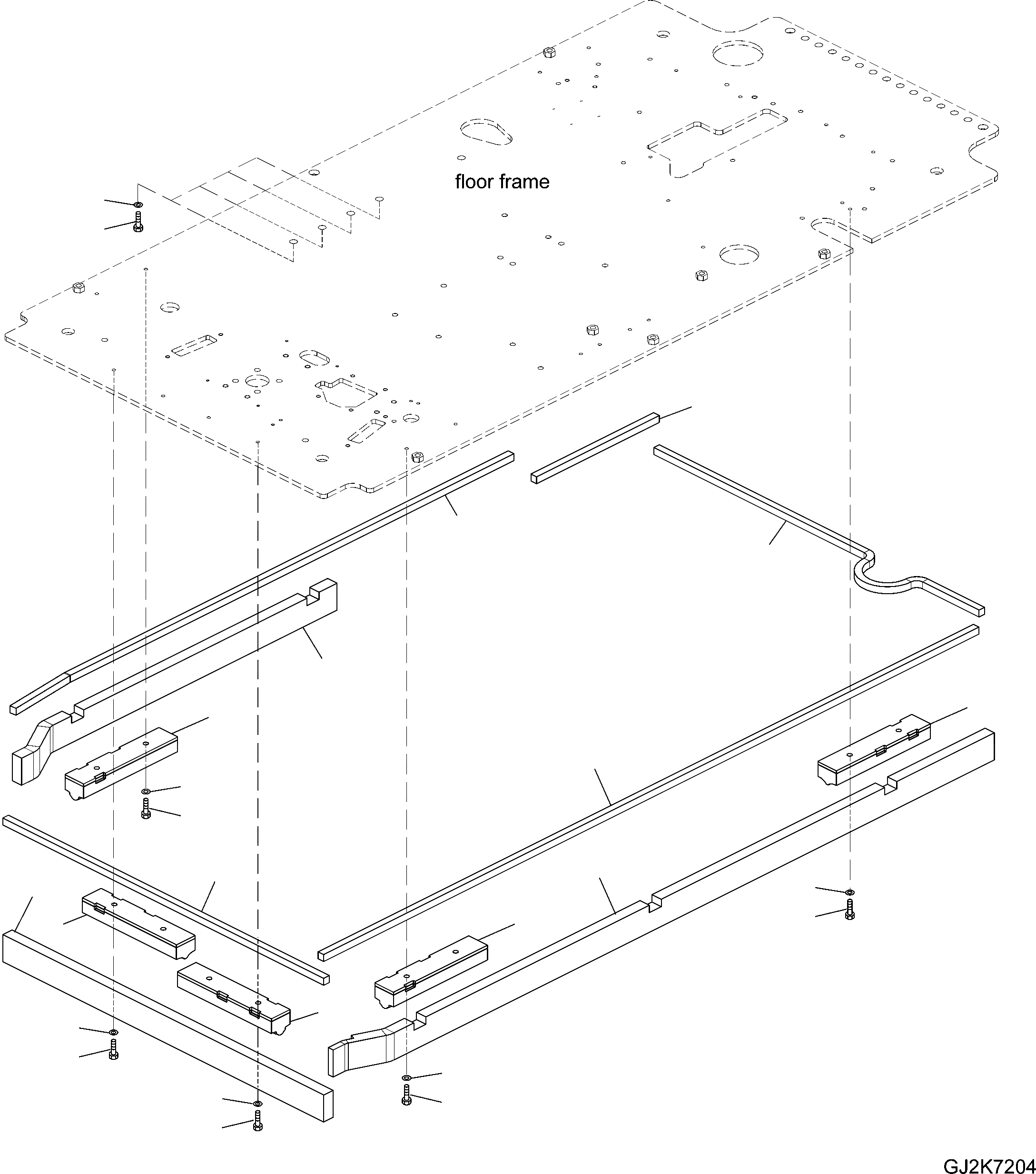
13
12
5
1
4
6
9
9
3
11
10
8
2
7
11
10
9
9
9
11
10
11
11
10
10
FIT
1:1
100%

Артикул

Название

Примечание

Количество

1

20Y-53-14910

SEAL

2

20Y-53-14920

SEAL

3

20Y-53-14930

SEAL

4

20Y-53-14940

SEAL

5

20Y-53-14950

SEAL

6

20Y-53-14963

SHEET

7

20Y-53-14973

SHEET

8

20Y-53-14983

SHEET

9

20Y-53-14831

SHEET

10

01016-50830

BOLT

11

01643-30823

WASHER

12

01010-80816

BOLT

13

01643-30823

WASHER

Выбрано товаров: 13