Запчасти Komatsu PW160-7E0 КОНДИЦ. ВОЗДУХА (КРЕПЛЕНИЕ ШЛАНГОВS) K OPERATORґS ОБСТАНОВКА И СИСТЕМА УПРАВЛЕНИЯ

Схема запчастей Komatsu PW160-7E0 - КОНДИЦ. ВОЗДУХА (КРЕПЛЕНИЕ ШЛАНГОВS) K OPERATORґS ОБСТАНОВКА И СИСТЕМА УПРАВЛЕНИЯ
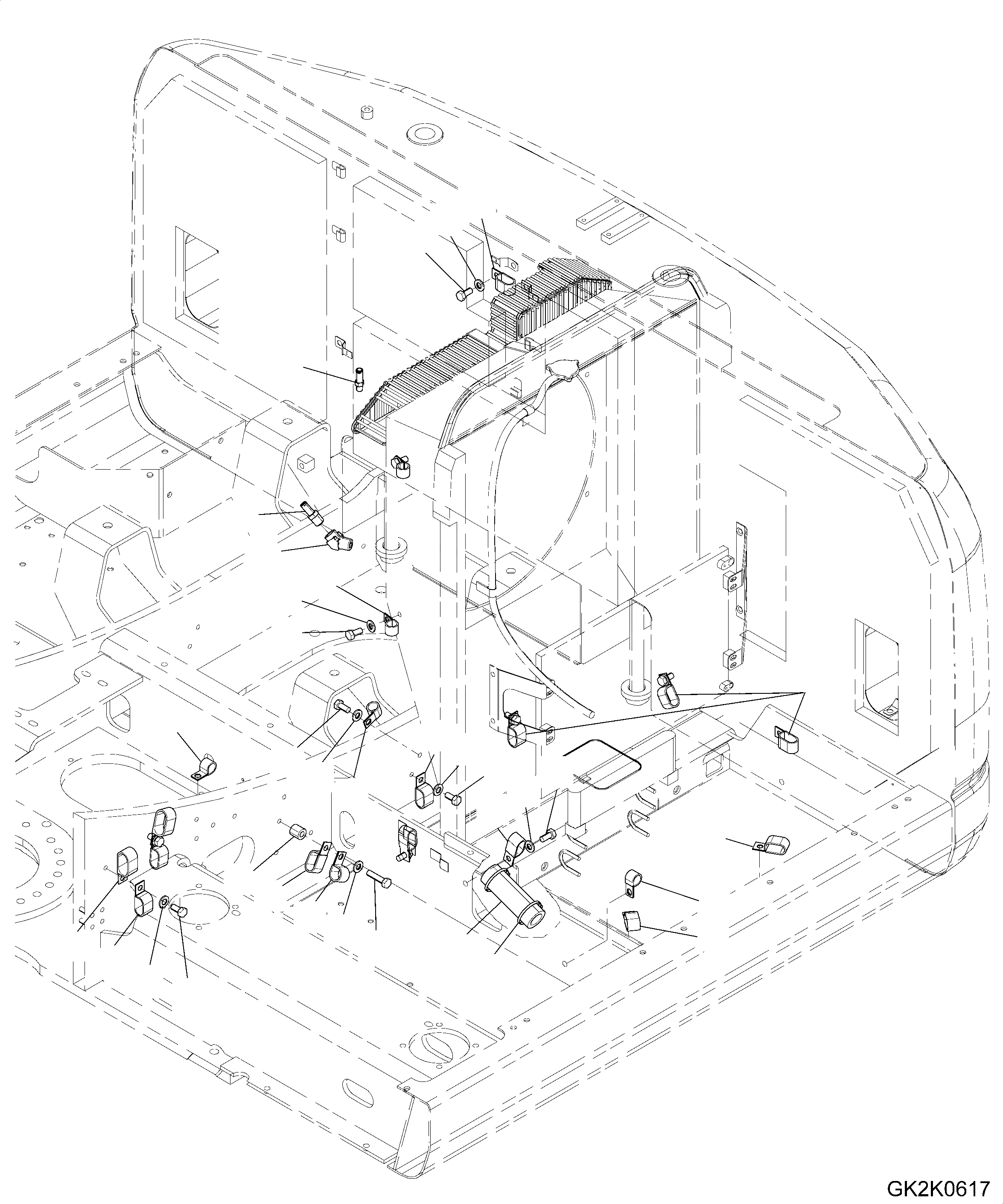
1
6
4
11
13
12
6
7
4
1
1
7
1
10
3
5
6
8
1
2
4
6
1
9
7
4
6
7
1
6
4
4
6
1
FIT
1:1
100%

Артикул

Название

Примечание

Количество

1

141-06-11220

CLIP

2

195-33-11220

SPACER

3

203-62-41150

COVER

4

01010-81225

BOLT

5

01010-81250

BOLT

6

01643-31232

WASHER

7

04434-52112

CLIP

8

04434-52712

CLIP

9

04435-52712

CLIP

10

08034-00519

BAND

11

20Y-810-1120

NIPPLE

12

20Y-810-1161

ELBOW

13

22U-97-91930

VALVE

Выбрано товаров: 13