Запчасти Komatsu PW160-7E0 ЛЕВ. ДВЕРЬ (КАБИНА) M ЧАСТИ КОРПУСА

Схема запчастей Komatsu PW160-7E0 - ЛЕВ. ДВЕРЬ (КАБИНА) M ЧАСТИ КОРПУСА
10
11
9
8
7
6
5
4
3
2
1
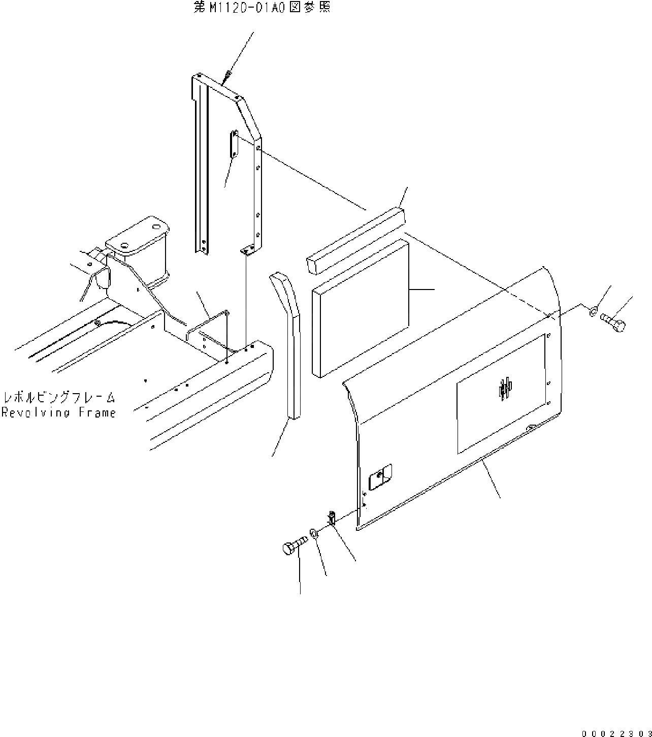
See Fig. M1120-01A0
FIT
1:1
100%

Артикул

Название

Примечание

Количество

|$1

20G-54-31312

DOOR ASSEMBLY

1

DOOR

|$3

20G-54-33241

HINGE, (WELDED)

|$4

198-54-41982

LOCK ASSEMBLY, (WELDED)

2

20G-54-31670

SHEET

3

20G-54-31680

SHEET

4

205-54-51970

DOVE TAIL

5

01643-30623

WASHER

6

01010-80616

BOLT

7

20G-54-31391

SHEET

8

01010-81225

BOLT

9

01643-31232

WASHER

10

20G-54-33300

PLATE

11

20Y-54-29231

BAR

Выбрано товаров: 14