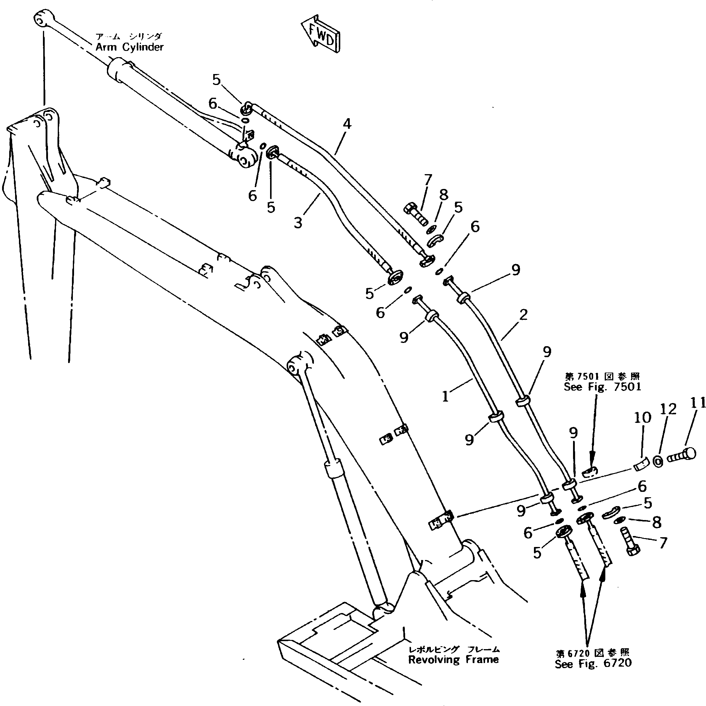
Запчасти Komatsu PW170-5K ГИДРОЛИНИЯ (РУКОЯТЬ И ЦИЛИНДР КОВША) (СТРЕЛА) (ДЛЯ 1-СЕКЦИОНН. СТРЕЛЫ) РАБОЧЕЕ ОБОРУДОВАНИЕ

Схема запчастей Komatsu PW170-5K - ГИДРОЛИНИЯ (РУКОЯТЬ И ЦИЛИНДР КОВША) (СТРЕЛА) (ДЛЯ 1-СЕКЦИОНН. СТРЕЛЫ) РАБОЧЕЕ ОБОРУДОВАНИЕ
FIT
1:1
100%

Артикул

Название

Примечание

Количество

1

21P-62-23110

TUBE

2

21P-62-23120

TUBE

3

21P-62-K1560

HOSE

4

21P-62-K1620

HOSE

5

07371-30640

FLANGE,SPLIT

6

07000-13025

O-RING

7

07372-21035

BOLT

8

01643-51032

WASHER

9

21K-62-35270

CUSHION

10

203-70-53381

PLATE

11

01010-51025

BOLT

12

01643-31032

WASHER

Выбрано товаров: 12