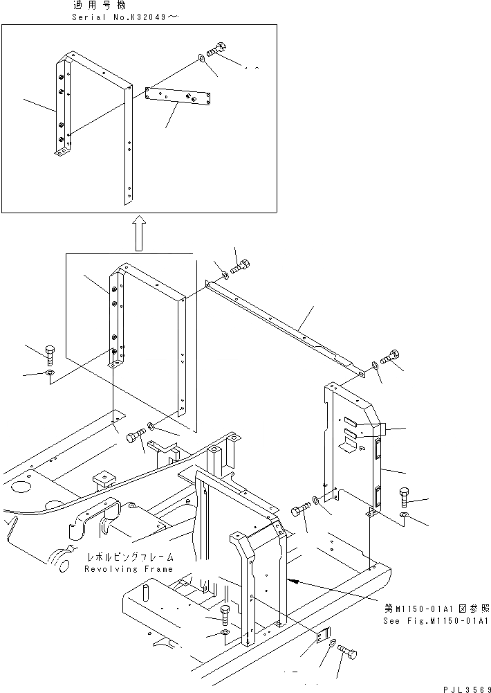
Запчасти Komatsu PW170ES-6K-KA РАМА (КАБИНА) (KA СПЕЦ-Я.)(№K-K) ЧАСТИ КОРПУСА

Схема запчастей Komatsu PW170ES-6K-KA - РАМА (КАБИНА) (KA СПЕЦ-Я.)(№K-K) ЧАСТИ КОРПУСА
1
2
3
3
3
4
4
4
5
5
6
7
8
9
9
10
10
11
12
13
14
15
16
17
18
19
FIT
1:1
100%

Артикул

Название

Примечание

Количество

1

21P-54-K5470

FRAME

2

205-03-71440

SHEET

3

01010-81230

BOLT

4

01643-31232

WASHER

5

21P-54-K5412

FRAME

|5

21P-54-K5411

FRAME

6

01010-81230

BOLT

7

01643-31232

WASHER

8

21P-54-K5480

FRAME

9

01010-81230

BOLT

10

01643-31232

WASHER

|11

20G-54-K2550

FRAME

11

20G-54-K2340

FRAME

12

20E-54-K5340

PLATE

13

01010-81220

BOLT

14

01643-31232

WASHER

15

01010-81230

BOLT

16

01643-31232

WASHER

17

21P-04-K2111

BRACKET

|17

21P-04-K2110

BRACKET

18

01010-81225

BOLT

19

01643-31232

WASHER

Выбрано товаров: 22