Запчасти Komatsu PW170ES-6K ПРАВ. ДВЕРЬ (КАБИНА)(№K-K999) M ЧАСТИ КОРПУСА

Схема запчастей Komatsu PW170ES-6K - ПРАВ. ДВЕРЬ (КАБИНА)(№K-K999) M ЧАСТИ КОРПУСА
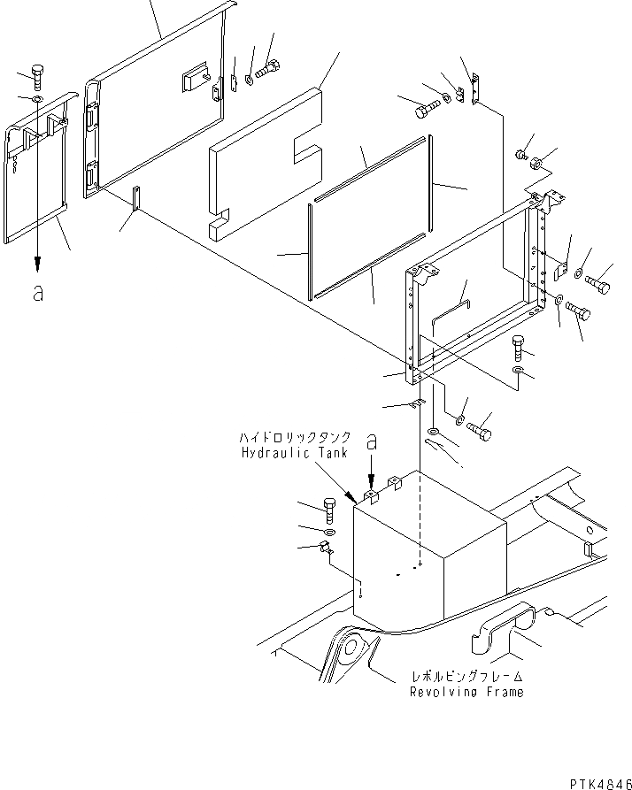
1
2
3
4
5
6
7
8
9
10
11
12
13
14
15
16
17
18
19
20
21
22
23
24
25
26
26
27
27
28
29
30
31
32
33
34
FIT
1:1
100%

Артикул

Название

Примечание

Количество

|1

20Y-54-K7404

DOOR ASSEMBLY

|1

20Y-54-K7403

DOOR ASSEMBLY

1

20Y-54-K7413

COVER

|1

198-54-41982

LOCK ASSEMBLY (WELDED)

2

205-54-53550

DOVE TAIL

3

01010-80612

BOLT

4

01643-30623

WASHER

5

01010-81235

BOLT

6

01643-31232

WASHER

7

20Y-54-33290

PLATE

8

20Y-54-K8552

FRAME

|8

20Y-54-K8551

FRAME

9

20Y-54-33170

BRACKET

10

01010-81225

BOLT

11

01643-31232

WASHER

12

205-54-51970

DOVE TAIL

13

01010-80616

BOLT

14

01643-30623

WASHER

15

20Y-54-K7421

PLATE

16

01010-81225

BOLT

17

01643-31232

WASHER

18

20E-54-K2230

BAR

19

01641-21016

WASHER

20

04050-13018

PIN,COTTER

21

20Y-54-11611

STOPPER

22

01580-11008

NUT

23

01010-81230

BOLT

24

01643-31232

WASHER

25

20G-54-K2271

SHEET

26

20Y-54-K7430

SEAL

27

20Y-54-K7441

SEAL

28

207-54-52690

PLATE

29

21P-54-K3131

COVER

30

01010-81225

BOLT

31

01643-31232

WASHER

32

20Y-54-12320

CATCH

33

01010-81230

BOLT

34

124-54-26540

WASHER

Выбрано товаров: 38