Качественные детали и логистика
Оригинальные и аналоговые запчасти с доставкой по России, Казахстану и Беларуси
©2022 PartSell ООО "Система" ИНН 2463123282 ОГРН 1212400004838
Центральный офис: г. Красноярск, Академика Киренского, д.87, пом.4
Телефон: 8 (800) 777-65-74 Email: zakaz@partsell.ru
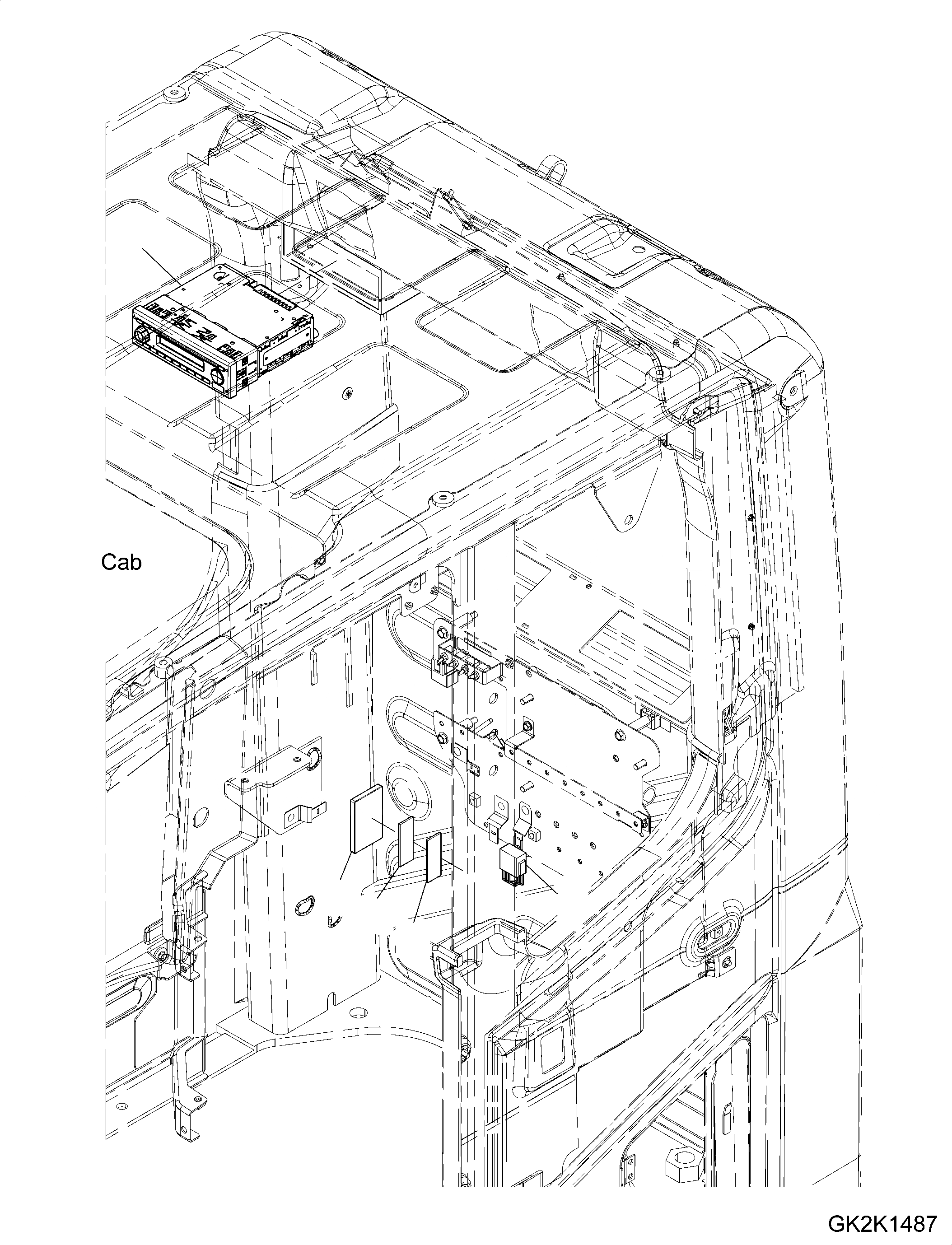
РАДИО, V, С CD
№
Артикул
Название
Примечание
Количество
1
421-07-H4160
Radio, 24V, with CD, Model Calais USB40
2
20J-06-51420
Switch, Radio, 24V
|$3
421-07-H4180
Radio, Remote Control Assembly
3
421-07-H4170
Radio, Remote Control
4
421-07-H4140
Tape, Recloseable Fastener
5
Выбрано товаров: 0